Direct dezvoltator/Comision 0%.
Pretul afisat este pentru plata cash a 95% din valoare, la promisiunea de vanzare - cumparare.
Pentru info si vizionari - tel: 0720002332
Pretul pentru plata prin credit ipotecar este de 60700euro(disponibil doar pe etajul5(ap.50) si 6(ap.59 ) la care se adauga pretul locului de parcare subteran - 10115euro( adica 8500 Euro+TVA 19%) ce se poate achizitiona separat, avand numar cadastral propriu. Nu mai avem disponibile locuri de parcare exterioare.
Ansamblul rezidential situat in Popesti-Leordeni in proximitatea statiei de metrou D. Leonida sau Berceni (aprox. 15minute pe jos) , intr-o locatie privilegiata a orasului, la doi pasi de marile centre comerciale ale sectorului 4.
Regim de inaltime, P+6 etaje. Toate apartamentele se ofera finisate complet si se predau ‘’la cheie’’.
Complexul beneficiaza atat de parcari subterane(doar acestea mai sunt disponibile) dar si exterioare(nu mai sunt disponibile).
Pentru a avea insa o imagine completa asupra beneficiilor pe care vi le-ar aduce o resedinta situata in complexul propus si pentru a discuta in detaliu oferta noastra, va asteptam cu placere sa ne contactati in vederea stabilirii unei vizionari .
Termen finalizare constructie: Decembrie 2025 !
Avem un birou direct care se ocupa de dosarele bancare pentru clientii cu credit.
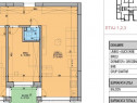
Foto si schita reala a apartamentului!
Confort: 1
Tip imobil: Bloc de apartamente
Posibilitate parcare: Da
Nr. locuri parcare: 1
Publicat prin HomeZZ.ro, vezi anunțul complet aici.