Veronica Ripa
pe site din 26 Sep
activ: 10 Feb 2026 21:14










109.990 eur
Companie
Descriere anunt
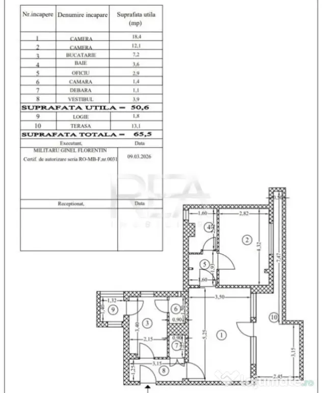
R.E.A.. Imobiliare va ofera spre vanzare un apartament cu 2 camere, semidecomandat, situat la Lujerului vis a vis de statia de metrou. Imobilul se afla intr.un bloc de apartamente construit in anul 1975, anvelopat, fara risc seismic, la etajul 11/11. Este alcatuit din living, dormitor, bucatarie, baie, balcon si terasa. Apartamentul este atipic fata de celellalte apartamente din zona, inaltimea camerelor fiind de 3m. Suprafata totala este de 65 mp, din care suprafata utila este de 50 mp.
Apartamentul necesita renovare, se vinde nemobilat si neutilat.
Imobilul dispune si de o terasa de 13 mp.
Confortul termic este realizat cu ajutorul retelei edilitare de termoficare.
In imediata apropiere se intalnesc puncte comerciale, bancare, farmaceutice, medicale, educationale si de divertisment.
Acces facil la mijloacele de transport in comun, 2 minute pana la statia Stb si metrou Lujerului.
Se accepta toate modalitatiile de plata. Informatiile tehnice au caracter orientativ, acestea fiind preluate de la proprietar. Pentru mai multe detalii si vizionari, ne puteti contacta telefonic, specificand codul P10390.
Id intern: P10772
Confort: 1
Tip imobil: Bloc de apartamente
Număr Băi: 1
Specificații
Suprafață utilă (m²)50
An constructie1975
Numar Camere2CompartimentareSemidecomandat
Etaj11
Mobilat/Utilat3
Număr niveluri imobil11
ID: 16792375
Contactează vânzătorul
Companie
Veronica Ripa
pe site din 26 Sepactiv:
Nu există recenzii
Mai multe anunțuri ale utilizatorului
Bucuresti, Bucuresti-Ilfov
Despre companie
Loading ad...
Contactează vânzătorul
Companie
Veronica Ripa
pe site din 26 Sepactiv:
Nu există recenzii
Loading ad...
Vezi mai multe anunturi ale acestui vânzator
Toate anunturileAnunturi similare








































































































































































































































































































































































