Vladislav Chirev
pe site din 28 Sep
activ: 10 Feb 2026 21:14













198.400 eur
Companie
Descriere anunt
R.E.A. Imobiliare
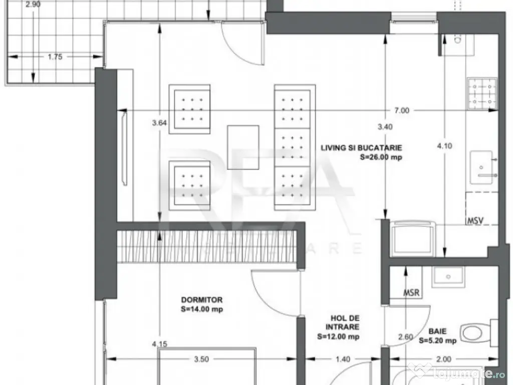
Apartament 2 camere, cu finisaje la alegere, decomandat, la etajul 1 din 3, intr-un complex rezidential modern finalizat in 2026.
- Suprafață totală de 60,78 mp: 50,18 mp utili + 10,6 mp balcon.
- Configurație: dormitor, living cu bucătărie, hol, baie și balcon.
- Incălzire prin pardoseală, centrală proprie.
Preț apartament 198.400 EUR + TVA ( sau 240.064 EUR TVA inclus ).
Un loc de parcare subteran disponibil la 25.000 EUR + TVA ( sau 30.250 EUR TVA inclus ).
Acces rapid la transport public: 3 minute pana la statiile STB, 8 minute pana la metrou Piata Iancului sau metrou Piata Muncii.
Localizare: Ultracentral în zona Matei Voievod, la doar câțiva pași de Parcul National si Vatra Luminoasa, cu acces rapid atât către Piata Victoriei, cât și către Universitate.
Contactează-ne pentru detalii suplimentare și programarea unei vizionări private. Cod proprietate P5008.
Id intern: P5008
Confort: 1
Tip imobil: Bloc de apartamente
Număr Băi: 1
Nr. locuri parcare: 1
Specificații
Numar Camere2
Suprafață utilă (m²)50
An constructie2026
Etaj1
CompartimentareSemidecomandat
Număr niveluri imobil3
Mobilat/Utilat3
ID: 16017224
Contactează vânzătorul
Companie
Vladislav Chirev
pe site din 28 Sepactiv:
Nu există recenzii
Mai multe anunțuri ale utilizatorului
Bucuresti, Bucuresti-Ilfov
Despre companie
Loading ad...
Contactează vânzătorul
Companie
Vladislav Chirev
pe site din 28 Sepactiv:
Nu există recenzii
Loading ad...
Vezi mai multe anunturi ale acestui vânzator
Toate anunturileAnunturi similare

















































































































































































































































































































































































































































