The Counselor
Pitesti, Arges
pe site din 2 Aug
activ: 6 Mar 2026 11:57
















210.000 eur
Companie
Descriere anunt
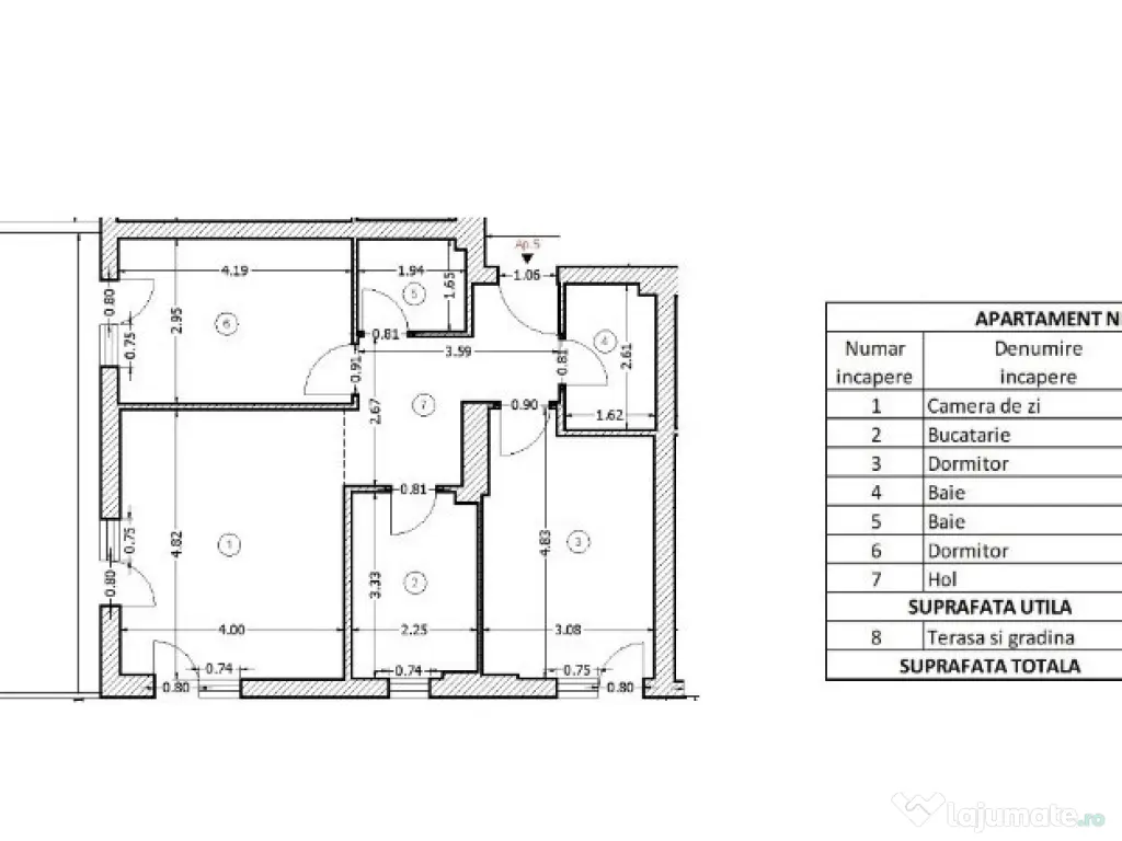
Apartament 3 camere cu terasă și grădină – The Class Apartments 3, Bd. Pipera
Apartament cu 3 camere, situat în ansamblul rezidențial The Class Apartments 3, pe Bulevardul Pipera, într-o zonă liniștită, bine conectată și în plină dezvoltare.
Clădirea este nouă, finalizată în 2023, și dispune de lift, subsol, parter și 4 etaje, oferind confort, siguranță și finisaje moderne.
Apartamentul se află la parter și are o suprafață utilă de 68,9 mp, la care se adaugă o terasă și o grădină privată de 50 mp, rezultând o suprafață totală de 118,9 mp.
Compartimentare:
Living: 19,2 mp
Bucătărie: 7,3 mp
Dormitor 1: 13,8 mp
Dormitor 2: 12,4 mp
Baie 1: 4,2 mp
Baie 2: 3,2 mp
Hol intrare: 8,8 mp
Apartamentul se vinde complet finisat, cu toate corpurile de iluminat incluse, bucătărie complet mobilată și utilată cu electrocasnice, și beneficiază de un loc de parcare inclus în preț.
Cele două băi sunt amenajate modern, iar terasa și grădina oferă un spațiu generos, ideal pentru relaxare sau activități în aer liber.
Locuința este ideală pentru cei care își doresc un apartament nou, luminos și funcțional, într-o zonă rezidențială modernă, cu acces rapid către Pipera, Aviației și zona de business din nordul capitalei.
Confort: Lux
Tip imobil: Bloc de apartamente
Număr Băi: 2
Comision cumpărător: 0%
Specificații
Numar Camere3
Suprafață utilă (m²)119
CompartimentareDecomandat
EtajParter
An constructie2023
Număr niveluri imobil4
Mobilat/Utilat1
Ansamblu rezidențialNu
ID: 16714666
Contactează vânzătorul
Companie
The Counselor
pe site din 2 Augactiv:
Nu există recenzii
Mai multe anunțuri ale utilizatorului
Bucuresti, Bucuresti-Ilfov
Despre companie
Loading ad...
Contactează vânzătorul
Companie
The Counselor
pe site din 2 Augactiv:
Nu există recenzii
Loading ad...
Vezi mai multe anunturi ale acestui vânzator
Toate anunturileAnunturi similare































































































































































































































































































































































































































































































































































