Veronica Ripa
pe site din 26 Sep
activ: 10 Feb 2026 21:14
















304.000 eur
Companie
Descriere anunt
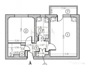
R.E.A. Imobiliare va ofera spre vanzare un apartament cu 3 camere, decomandat, situat pe Bdul Timisoara, in Complexul GranVia Park. Imobilul se afla intr.un bloc de apartamente construit in anul 2018, fara risc seismic, la etajul P/11. Este alcatuit din living, doua dormitoare, bucatarie, doua bai si o terasa de 49mp. Suprafata totala este de 123mp, din care suprafata utila este de 74 mp.
Apartamentul se vinde complet mobilat si utilat.
Dotari si facilitati : mobilier executat la comanda, terasa inconjurata de tuia inalti pentru intimitate cu pardoseala Deck Wpc partial acoperita, structura metalica si acoperis din policarbonat fumuriu, rulouri exterioare la ferestre, centrala Vaillant schimbata in 2026.
Complexul dispune de paza, acces cu bariera, parc de joaca pentru copii cu acces doar pentru locatari.
Este disponibil si un loc de parcare platit pana in septembrie 2026, cu posibilitate de a fi prelungit, inchiriat la pretul de 300 lei lunar.
In imediata apropiere se intalnesc puncte comerciale, bancare, farmaceutice, medicale, educationale si de divertisment.
Acces facil la mijloacele de transport in comun, 5 minute pana la statia Stb si metrou Lujerului.
Se accepta toate modalitatiile de plata. Informatiile tehnice au caracter orientativ, acestea fiind preluate de la proprietar. Pentru mai multe detalii si vizionari, ne puteti contacta telefonic, specificand codul P10749.
Id intern: P10749
Confort: 1
Tip imobil: Bloc de apartamente
Număr Băi: 2
Specificații
Suprafață utilă (m²)74
An constructie2018
Numar Camere3CompartimentareDecomandat
EtajParter
Mobilat/Utilat1
Număr niveluri imobil11
ID: 16791419
Contactează vânzătorul
Companie
Veronica Ripa
pe site din 26 Sepactiv:
Nu există recenzii
Mai multe anunțuri ale utilizatorului
Bucuresti, Bucuresti-Ilfov
Despre companie
Loading ad...
Contactează vânzătorul
Companie
Veronica Ripa
pe site din 26 Sepactiv:
Nu există recenzii
Loading ad...
Vezi mai multe anunturi ale acestui vânzator
Toate anunturileAnunturi similare



































































































































































































































































































































