Chihaescu Andrei
pe site din 11 Aug
activ: 10 Feb 2026 21:14













280.000 eur
Companie
Descriere anunt
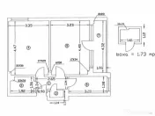
Va prezentam spre vanzare un apartament cu 4 camere pozitionat strategic in Aviatiei, una din cele mai dinamice zone din capitala.
Pozitionat la parter/4 intr-un imobil construit in 1987, apartamentul de 85 mp se bucura de o constructie extra: balcon (4 mp) si o pivnita betonata sub balcon cu cadastru si intabulare.
Locuinta decomandata dispune de 3 dormitoare, 2 bai, un living generos si o bucatarie inchisa - fiind potrivita atat pentru rezidenta cat si pentru investitie intr-o zona cu cerere constant ridicata.
Locatia ofera conexiuni excelente catre centrul orasului prin artere importante precum Barbu Vacarescu si Floreasca, dar si acces faci; catre zona de nord si DN1, inclusiv ctre eroportul Otopeni.
Conectivitate buna catre restul orasului, chiar si fara utilizarea autoturismului: metrou Aurel Vlaicu si linii multiple de autobuz
Zona este foarte bine deservita de: centre comerciale (Promenada Mall, Baneasa Shopping City), supermarket-uri, restaurante, cafenele, sali de fitness, centre wellness.
Confort: 1
Tip imobil: Bloc de apartamente
Număr Băi: 2
Posibilitate parcare: Nu
Specificații
Suprafață utilă (m²)81
An constructie1987
Numar Camere4CompartimentareDecomandat
EtajParter
Mobilat/Utilat3
Număr niveluri imobil4
ID: 16792480
Contactează vânzătorul
Companie
Chihaescu Andrei
pe site din 11 Augactiv:
Nu există recenzii
Mai multe anunțuri ale utilizatorului
Bucuresti, Bucuresti-Ilfov
Despre companie
Loading ad...
Contactează vânzătorul
Companie
Chihaescu Andrei
pe site din 11 Augactiv:
Nu există recenzii
Loading ad...
Vezi mai multe anunturi ale acestui vânzator
Toate anunturileAnunturi similare












































































































































































































































































































































































































































