



















Descriere anunt
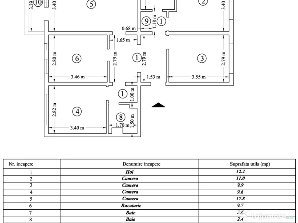
* Poziționare, zonă și accesibilitate Situat într-o zonă liniștită. Iluminare naturală foarte bună, apartamentul beneficiind de soare pe parcursul unei mari părți a zilei. Poziționarea la etajul 1 îl face potrivit atât pentru locuit, cât și pentru activități de birou sau cabinete. Acces facil la puncte de interes: școală, grădiniță; Lidl; stație de autobuz; complex Ardealul (Profi, Easybox); complex Micsunica (Lidl, Carrefour); biserică; farmacie; Piața Astra. Aproape de strada Minerva și calea ferată, ceea ce reduce șansele de construcții noi în apropiere. Parcari in fata si in spatele blocului. * Structură Bloc P+4, 10 apartamente pe scară. Decomandat. Compartimentare practică, cu hol principal larg și două holuri secundare ce permit amenajarea de spații de depozitare / debara. 2 bai. Baia mare are geam spre exterior. Pereții de rezistență ai apartamentului nu au fost modificați, demolați sau afectați structural. * Îmbunătățiri Centrală termică de apartament. Ferestre cu geam termopan. Termoizolație exterioară cu polistiren. Balcon tip logie, închis. Usa metalica. * Detalii suplimentare Apartament nerenovat, permițând cumpărătorului identificarea facilă a eventualelor probleme și amenajarea după propriile preferințe. Nu au existat intrări prin efracție în apartament și nu sunt cunoscute incidente similare pe scară. Asigurare obligatorie PAD existentă. Automat de iluminat pe casa scării. Verificările centralei termice și ale instalației de gaz sunt la zi. Primul proprietar. Liber la vânzare, disponibil imediat.
Sabin
pe site din 25 JanCa urmare, legile privind drepturile consumatorilor nu se aplică în cazul achizițiilor pe care le faci de la acest vânzător. Este deosebit de important să respecți sfaturile noastre cu privire la siguranță în interacțiunile cu vânzători privați.
Sabin
pe site din 25 Jan


















































































































































































