BLITZ Romania
pe site din 4 Sep
activ: 10 Feb 2026 21:14

112.000 eur
Companie
Descriere anunt
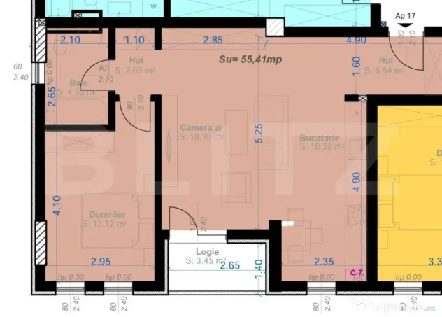
Blitz vă propune spre vânzare un apartament cu 2 camere situat în zona Calea Aradului, într-un imobil nou (P+5) cu finalizare în Decembrie 2026. Această unitate se remarcă prin holurile generoase care permit mobilarea cu multiple spații de depozitare, fiind disponibilă pe mai multe niveluri .
Compartimentare și Suprafețe (Suprafață Utilă: 55.41 mp)
Camera de zi: 18.70 mp – un spațiu primitor și luminos.
Bucătărie: 10.32 mp.
Dormitor: 13.12 mp.
Baie: 4.59 mp.
Holuri (Total peste 8 mp): Hol intrare (6.64 mp) + Hol secundar (2.03 mp), oferind o separare excelentă a zonei de noapte.
Logie: 3.45 mp.
Opțiuni Parcare (se achiziționează separat)
Loc de parcare Suprateran: 7.000 Euro + TVA
Loc de parcare Subteran: 10.000 Euro + TVA
Avantajele acestei variante
Funcționalitate maximă: Bucătăria de peste 10 mp este un atu major pentru confortul zilnic.
Flexibilitate etaj: Puteți alege unitatea la etajul preferat, în funcție de stocul disponibil.
Investiție sigură: Localizarea în zona de nord a orașului garantează o apreciere constantă a valorii și ușurință la închiriere.
Standarde noi: Construcție modernă cu finalizare în 2026 și lift de ultimă generație.
Preț Apartament: 112.000 Euro + TVA.
Va asteptam cu drag la o vizionare!
Cod ofertă / ID BLITZ: P164208
Id intern: P164208
Confort: 1
Tip imobil: Bloc de apartamente
Număr Băi: 1
Specificații
Suprafață utilă (m²)55
An constructie2026
Numar Camere2CompartimentareSemidecomandat
Etaj1
Mobilat/Utilat3
Număr niveluri imobil5
ID: 16825043
Contactează vânzătorul
Companie
BLITZ Romania
pe site din 4 Sepactiv:
Nu există recenzii
Mai multe anunțuri ale utilizatorului
Timisoara, Timis
Despre companie
Loading ad...
Contactează vânzătorul
Companie
BLITZ Romania
pe site din 4 Sepactiv:
Nu există recenzii
Loading ad...
Vezi mai multe anunturi ale acestui vânzator
Toate anunturileAnunturi similare































































































































































































































































































































































