Cristian Ghica
pe site din 1 Oct
activ: 10 Feb 2026 21:14











114.000 eur
Companie
Descriere anunt
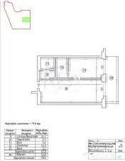
REA Imobiliare va prezinta un, etaj 6/9, finalizat in anul 2010. Suprafata totala de 43,74 mp din care suprafata utila de 41,95 mp, suprafata balcon 1,79 mp . Sistem de incalzire -> centrala imobil. Configuratie: dormitor, living, baie, bucatarie, debara, camara, balcon. Transport in comun -> 1 min pana la statiile STB si 4 min pana la statia de metrou Universitate . Pentru detalii si vizionari va rugam sa ne contactati specificand codul de identificare P10776.
Id intern: P10776
Confort: 1
Tip imobil: Bloc de apartamente
Număr Băi: 1
Specificații
Suprafață utilă (m²)41
An constructie1960
Numar Camere2CompartimentareSemidecomandat
Etaj6
Mobilat/Utilat1
Număr niveluri imobil9
ID: 16793175
Contactează vânzătorul
Companie
Cristian Ghica
pe site din 1 Octactiv:
Nu există recenzii
Mai multe anunțuri ale utilizatorului
Bucuresti, Bucuresti-Ilfov
Despre companie
Loading ad...
Contactează vânzătorul
Companie
Cristian Ghica
pe site din 1 Octactiv:
Nu există recenzii
Loading ad...
Vezi mai multe anunturi ale acestui vânzator
Toate anunturileAnunturi similare













































































































































































































































































































































































































