BLITZ Romania
pe site din 4 Sep
activ: 10 Feb 2026 21:14



131.700 eur
Companie
Descriere anunt
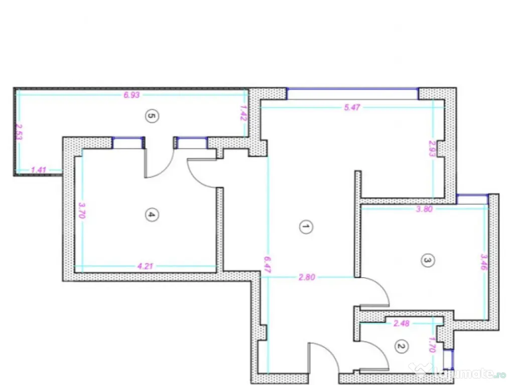
Blitz vă propune spre vânzare un apartament cu 3 camere, situat într-un imobil nou din zona Donath, la doar 10 minute de Cluj Arena – o alegere solidă atât pentru locuit, cât și pentru investiție, cu termen de finalizare în iulie 2026.
Apartamentul are o suprafață utilă de 62.5 mp și este compartimentat eficient, semidecomandat: living cu bucătărie open-space, două dormitoare, baie cu geam și spații bine optimizate pentru confort zilnic.
Un avantaj real este balconul generos de 10,90 mp, care oferă spațiu pentru relaxare sau amenajare practică.
Suprafețele vitrate mari aduc lumină naturală pe tot parcursul zilei, creând un ambient aerisit și plăcut.
Se predă finisat, cu materiale premium, și beneficiază de:
* centrală termică proprie
* încălzire în pardoseală
* tâmplărie Gealan
* imobil nou, eficient energetic
Apartamentul este situat la etajul 3 din 4, într-un bloc modern, bine proiectat.
Opțional, se poate achiziționa loc de parcare:
* subteran: 11.000 €
* suprateran: 7.000 €
Un apartament echilibrat, ușor de valorificat pe termen lung, într-o zonă în plină dezvoltare – potrivit atât pentru locuință personală, cât și pentru investiție sigură.
La toate prețurile se adaugă TVA 21%.
Programează o vizionare și vezi dacă se potrivește cu planurile tale.
Cod ofertă / ID BLITZ: P170161
Id intern: P170161
Confort: 1
Tip imobil: Bloc de apartamente
Număr Băi: 1
Specificații
Suprafață utilă (m²)62
An constructie2026
Numar Camere3CompartimentareSemidecomandat
Etaj3
Mobilat/Utilat3
Număr niveluri imobil4
ID: 16817172
Contactează vânzătorul
Companie
BLITZ Romania
pe site din 4 Sepactiv:
Nu există recenzii
Mai multe anunțuri ale utilizatorului
Cluj-Napoca, Cluj
Despre companie
Loading ad...
Contactează vânzătorul
Companie
BLITZ Romania
pe site din 4 Sepactiv:
Nu există recenzii
Loading ad...
Vezi mai multe anunturi ale acestui vânzator
Toate anunturileAnunturi similare
































































































































































































































































































































