Cornel Ion
pe site din 22 Aug
activ: 10 Feb 2026 21:14







134.850 eur
Companie
Descriere anunt
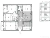
Vă propunem spre vânzare un apartament complet recompartimentat, de 3 camere, 75mp, un living dosebit si o camera cu perete mobil care poate fi folosita in diferite moduri.
Apartamentul este situat in Sectorul 4, pe Bulevardul Alexandru Obregia, intre intersectia cu Strada Turnu Magurele si Piata Cultural - Straduintei.
- suprafata utila -75 mp, decomandat, 3 camere, 2 balcoane inchise
- etaj - 4, lift,
- bloc 1977-1978 - solid, bine construit, reabilitat termic
- mobilat partial
- instalații electrice și sanitare in stare buna
- nu sunt probleme cu umezeala, infiltratii
- scara curata, supraveghere video, vecini civilizati fara datorii
- zona buna, linistita, moderna si dezvoltata
- magazine, sali de sport, scoli, gradinite in apropiere.
- in apropiere bloc - Mall Grand Arena, Piata Straduintei (Cultural)
- in fata blocului sunt statiile STB -72, 73, N105, N106, la 2-3minute, 102, 125, 312
- loc de parcare de la ADP, se transfera noului proprietar
O oferta excelenta pentru o persoana sau o familie, care are nevoie de un apartament modern pentru un stil de viata activ.
Pentru mai multe detalii - Cornel -0770 280 100
Se acceptă si achiziția prin credit bancar.
Agentia Imobiliara – Ramiro Imob
Comision Standard
Oferim suport în relația cu banca, cu acces la cele mai bune oferte de finanțare, precum și asistență in relatia cu notariatul.
Confort: 1
Tip imobil: Bloc de apartamente
Număr Băi: 1
Posibilitate parcare: Nu
Specificații
Suprafață utilă (m²)75
An constructie1978
Numar Camere3CompartimentareSemidecomandat
Etaj4
Număr niveluri imobil10
ID: 16810969
Contactează vânzătorul
Companie
Cornel Ion
pe site din 22 Augactiv:
Nu există recenzii
Mai multe anunțuri ale utilizatorului
Bucuresti, Bucuresti-Ilfov
Despre companie
Loading ad...
Contactează vânzătorul
Companie
Cornel Ion
pe site din 22 Augactiv:
Nu există recenzii
Loading ad...
Vezi mai multe anunturi ale acestui vânzator
Toate anunturileAnunturi similare















































































































































































































































































































































































