BLITZ Romania
pe site din 4 Sep
activ: 10 Feb 2026 21:14





275.465 eur
Companie
Descriere anunt
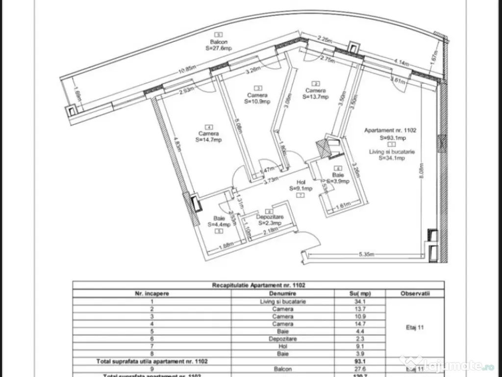
De vânzare – Apartament 4 camere, 93,1 mp utili + balcon 27,6 mp, semifinisat – Ansamblu rezidențial Zorilor, etaj 11
???? Zorilor | Etaj 11 | Vedere panoramică | Semifinisat | Spațiu generos | Balcon deosebit
Vă propunem spre vânzare un apartament cu 4 camere, situat la etajul 11 al unui imobil nou dintr-un ansamblu rezidențial modern, aflat în inima cartierului Zorilor – una dintre cele mai dorite zone din Cluj-Napoca.
???? Detalii apartament:
• Suprafață utilă: 93,1 mp
• Living cu bucătărie open-space – spațiu luminos și aerisit, ideal pentru relaxare și socializare
• 3 dormitoare – confortabile și bine proporționate
• 2 băi – prevăzute pentru confortul întregii familii
• Hol și spațiu de depozitare – pentru o organizare eficientă
• Balcon generos de 27,6 mp – cu vedere panoramică, ideal pentru amenajare ca terasă, zonă de relaxare sau grădină urbană
✅ Caracteristici:
• Semifinisat – cu posibilitatea de a fi amenajat după propriul gust (pereți tencuiți, șapă, instalații electrice și sanitare trase, ușă metalică, geamuri termopan)
• Clădire nouă, cu lift modern, acces securizat și finisaje de calitate în spațiile comune
• Ansamblu rezidențial în Zorilor – cu infrastructură completă, locuri de parcare, spații verzi, aproape de tot ce ai nevoie
???? Avantaje locație – Zorilor:
• Acces facil către Centru, UMF, Spitalul de Recuperare, Sigma Center
• Aproape de școli, grădinițe, farmacii, supermarketuri și mijloace de transport
• Zonă liniștită, sigură și cu dezvoltare continuă – excelentă pentru locuit sau investiție
???? Pentru mai multe detalii sau pentru a programa o vizionare, nu ezitați să mă contactați!
Cod ofertă / ID BLITZ: P146374
Id intern: P146374
Confort: 1
Tip imobil: Bloc de apartamente
Număr Băi: 2
Nr. locuri parcare: 2
Specificații
Numar Camere4
Suprafață utilă (m²)93
An constructie2021
Etaj11
CompartimentareDecomandat
Număr niveluri imobil15
Mobilat/Utilat3
ID: 16517934
Contactează vânzătorul
Companie
BLITZ Romania
pe site din 4 Sepactiv:
Nu există recenzii
Mai multe anunțuri ale utilizatorului
Cluj-Napoca, Cluj
Despre companie
Loading ad...
Contactează vânzătorul
Companie
BLITZ Romania
pe site din 4 Sepactiv:
Nu există recenzii
Loading ad...
Vezi mai multe anunturi ale acestui vânzator
Toate anunturileAnunturi similare






























































































































































































































































































































































