Bianca Lungu
Brasov, Brasov
pe site din 25 Mar
activ: 26 Mar 2026 13:27















149.000 eur
Companie
Descriere anunt
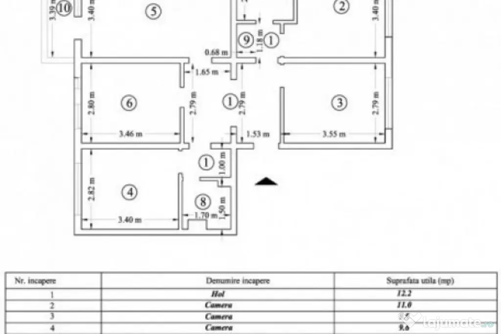
Vă propunem spre vânzare un apartament deosebit, cu 4 camere, decomandat, având o suprafață totala de 80.2 mp, situat in zona Astra in apropiere de Liceul Silvic, cu acces rapid către multe puncte de interes.
Imobilul se află la etajul 1 din 4, într-un bloc solid, reabilitat.
Apartamentul necesita renovare si beneficiaza de logie inchisa si centrala proprie.
Zona este liniștită și bine conectată la mijloacele de transport în comun, iar în apropiere se regăsesc magazine, restaurante, terase și parcuri, ceea ce asigură un stil de viață modern și confortabil.
Daca apreciati aceasta oferta sau pentru alte informatii sunati la numarul de contact din anunt!
Ne dorim sa iti oferim cea mai placuta experienta pentru descoperirea proprietatii ideale!
Clarificari aditionale:
Informatiile tehnice au caracter orientativ, ele fiind preluate de la proprietari.
Id intern: P234224
Confort: 1
Tip imobil: Bloc de apartamente
Număr Băi: 2
Comision cumpărător: 0%
Specificații
Numar Camere4
Suprafață utilă (m²)80
An constructie1980
Etaj1
CompartimentareDecomandat
Număr niveluri imobil4
Mobilat/Utilat3
ID: 16730553
Contactează vânzătorul
Companie
Bianca Lungu
pe site din 25 Maractiv:
Nu există recenzii
Mai multe anunțuri ale utilizatorului
Brasov, Brasov
Despre companie
Loading ad...
Contactează vânzătorul
Companie
Bianca Lungu
pe site din 25 Maractiv:
Nu există recenzii
Loading ad...
Vezi mai multe anunturi ale acestui vânzator
Toate anunturileAnunturi similare


























































































































































































































































































































































