Andrei Huțanu
pe site din 19 Sep
activ: 10 Feb 2026 21:14








95.200 eur
Companie
Descriere anunt
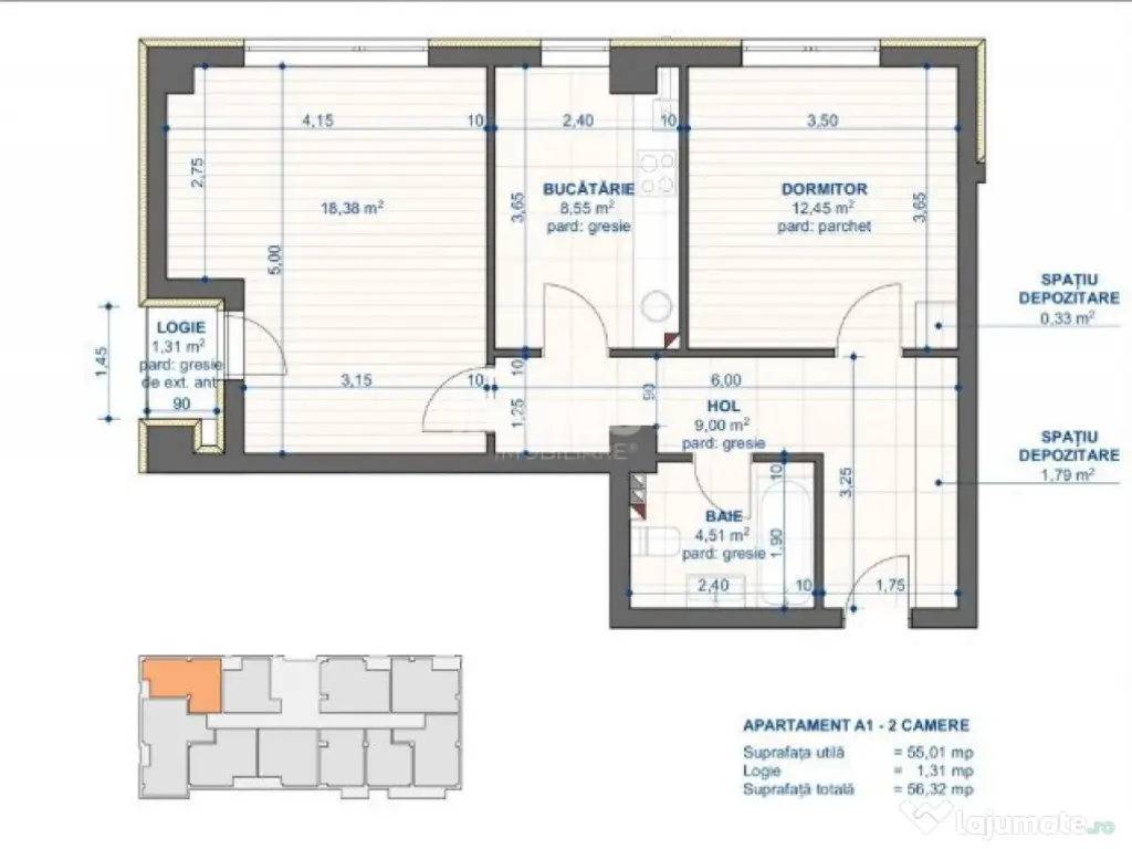
INVEST IMOBILIARE va propune spre vanzare un apartament cu 2 camere , decomandat , situat in zona Nicolina-Cug , in imediata apropiere a rondului de tramvai nr 9 .
Termenul de predare fiind finalul acestui an, iar avansul minim la credit este de 50% !!!
Apartamentul are o suprafata utila de 55 mp, o logie de 1,3 mp si beneficiaza de o compartimentare eficienta .
Dotari complex :
* Videointerfon
* Fibra optica in interiorul apartamentului
* Supraveghere video complex
* Control acces intrare complex
* Lifturi Kleeman
* Aer conditionat inclus
* Usi antiefractie si cu rezistenta la foc
* Baie complet mobilata si utilata
* Gresie , faianta si parchet de calitate ( import )
Pentru mai multe detalii și pentru a programa o vizionare, nu ezitați să mă contactați:
Andrei Huțanu - 0743 657 754
Id intern: P7682
Confort: 1
Tip imobil: Bloc de apartamente
Număr Băi: 1
Comision cumpărător: 3%
Specificații
Numar Camere2
Suprafață utilă (m²)55
An constructie2025
Etaj1
CompartimentareDecomandat
Număr niveluri imobil3
Mobilat/Utilat3
ID: 16595403
Contactează vânzătorul
Companie
Andrei Huțanu
pe site din 19 Sepactiv:
Nu există recenzii
Mai multe anunțuri ale utilizatorului
Iasi, Iasi
Despre companie
Loading ad...
Contactează vânzătorul
Companie
Andrei Huțanu
pe site din 19 Sepactiv:
Nu există recenzii
Loading ad...
Vezi mai multe anunturi ale acestui vânzator
Toate anunturileAnunturi similare













































































































































































































































































































































































































































