Alexandru Luca
pe site din 24 Iun
activ: 10 Feb 2026 21:14









145.000 eur
Companie
Descriere anunt
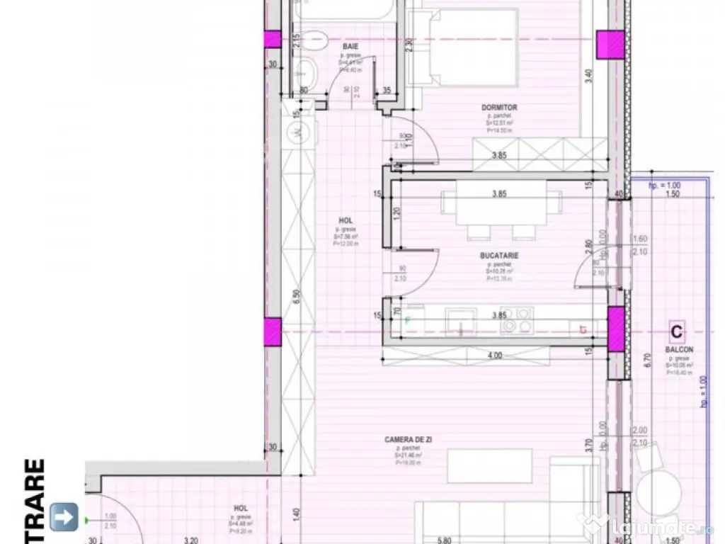
Va propunem spre vanzare un apartament de 3 camere, balcon si loc propriu de parcare, pozitionat la etajul intermediar 2 din 3 al, unui nou complex rezidential aflat in Selimbar zona Pictor Brana.
Apartamentul are o suprafata utila de 61,20 mp compusa din: living cu bucatarie de tip-open space de 21,46 mp, 2 dormitoare de 12,51 respectiv 10,78, hol de acces de 4,48 mp cu spatiu pentru cuier si pantofar si sas de 7,56 mp perfect pentru amenajarea unul dressing spatios. Separat de suprafata utila, locuinta beneficiaza de un balcon de 10,05 mp.
In pretul apartamentului este inclus un loc de parcare privat, amenajat cu dale de beton, situat in fata imobilului.
Apartamentul se preda complet finisat la cheie si include usa metalica antiefractie placata cu panou MDF, centrala termica Vaillant Ecotec (24 kW incalzire / 28 kW apa calda), incalzire in pardoseala Purmo cu termostatare individuala, tamplarie PVC cu 7 camere si 3 foi de sticla marca Kommerling, instalatie electrica din cupru cu tablou general si sigurante, racorduri apa-canal si gaz, contorizare individuala si interfon.
Finisaje incluse: pereti tencuiti, gletuiti si zugraviti cu lavabila, parchet laminat SPC 10 mm in camere si hol, gresie in bucatarie si bai, faianta in bai, obiecte sanitare montate, usi interioare Naturen, prize si intrerupatoare Schneider.
Spatiile comune interioare sunt amenajate cu gresie antiderapanta, balustrade metalice si iluminat cu senzori, iar exteriorul complexului include alei pavate, trotuare si zone verzi amenajate.
Predarea imobilului se va realiza in luna mai 2026, acesta urmand a fi livrat la cheie, iar exteriorul complet amenajat cu locuri de parcare, trotuare si spatii verzi.
Valoarea de achizitie este de 145.000 euro, TVA 21% inclus. Acesta se poate achizitiona si prin credit bancar. ID intern: 3293.
Confort: 1 sporit
Tip imobil: Bloc de apartamente
Număr Băi: 1
Posibilitate parcare: Da
Nr. locuri parcare: 1
Specificații
Suprafață utilă (m²)61
An constructie2025
Numar Camere3CompartimentareDecomandat
Etaj2
Mobilat/Utilat3
Număr niveluri imobil3
ID: 16754169
Contactează vânzătorul
Companie
Alexandru Luca
pe site din 24 Junactiv:
Nu există recenzii
Mai multe anunțuri ale utilizatorului
Sibiu, Sibiu
Despre companie
Loading ad...
Contactează vânzătorul
Companie
Alexandru Luca
pe site din 24 Junactiv:
Nu există recenzii
Loading ad...
Vezi mai multe anunturi ale acestui vânzator
Toate anunturileAnunturi similare
























































































































































































































































































































































































