Serban Jijakli
pe site din 27 Oct
activ: 22 Apr 2026 12:24



2.102 eur
Companie
Descriere anunt
Imobiliar Expert Grup vă propune spre închiriere o casă spațioasă și modernă, situată într-o zonă ultracentrală – Cartierul Evreiesc (Udriste), ideală pentru desfășurarea activităților de firmă (birouri, sediu companie, cabinet, showroom etc.).
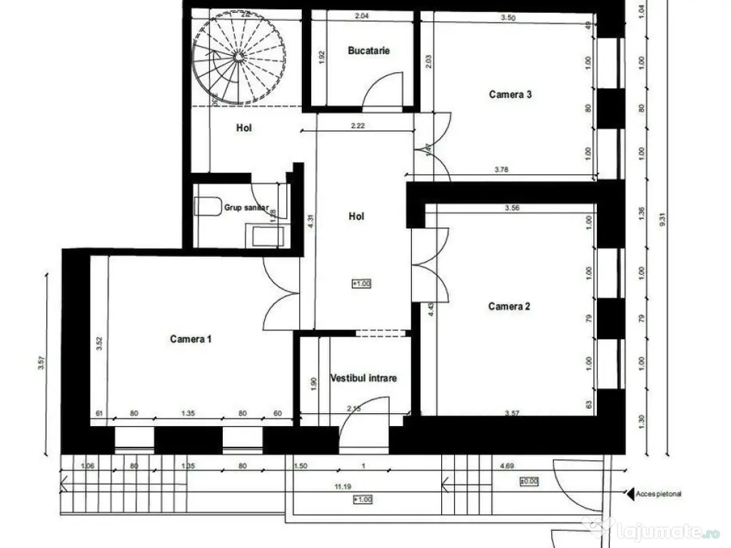
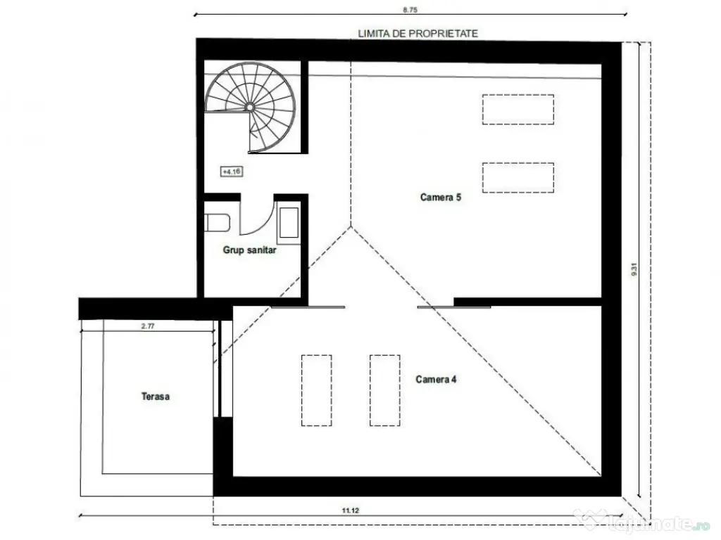
Proprietatea are o suprafață utilă de 174 mp, este dispusă pe parter + mansardă și se închiriază exclusiv pentru firme, nu pentru locuit.
Compartimentare:
Parter: 3 camere, 1 baie, bucătărie
Mansardă: 2 camere mari, 1 baie, balcon
Casa beneficiază de centrală proprie, încălzire în pardoseală, izolație exterioară de 20 cm și ferestre Qfort cu geam tripan din aluminiu, oferind un confort termic și fonic excelent.
Imobilul se află în stadiu de finisare, ceea ce îl face perfect pentru chiriașii care doresc să personalizeze finisajele în funcție de specificul activității lor.
Disponibilitate: martie–aprilie
Preț chirie: 2.100 euro/lună
Va asteptam, cu drag, la vizionare!
Număr niveluri imobil: mai mult de 12
Număr Băi: 2
Posibilitate parcare: Nu
Curent
Apă
Canalizare
Gaz
Încălzire
Subsol
Specificații
Numar Camere5
Suprafață utilă (m²)174
An constructie2015
Suprafata construita (m²)2
Număr niveluri imobilMai mult de 12
ID: 16737609
Contactează vânzătorul
Companie
Serban Jijakli
pe site din 27 Octactiv:
Nu există recenzii
Mai multe anunțuri ale utilizatorului
Bucuresti, Bucuresti-Ilfov
Despre companie
Loading ad...
Contactează vânzătorul
Companie
Serban Jijakli
pe site din 27 Octactiv:
Nu există recenzii
Loading ad...
Vezi mai multe anunturi ale acestui vânzator
Toate anunturileAnunturi similare






















































































































































































































































































































































































































































































































