BLITZ Romania
pe site din 4 Sep
activ: 10 Feb 2026 21:14









215.000 eur
Companie
Ghiroda, TM
10.02.2026
Număr de telefon validat
Descriere anunt
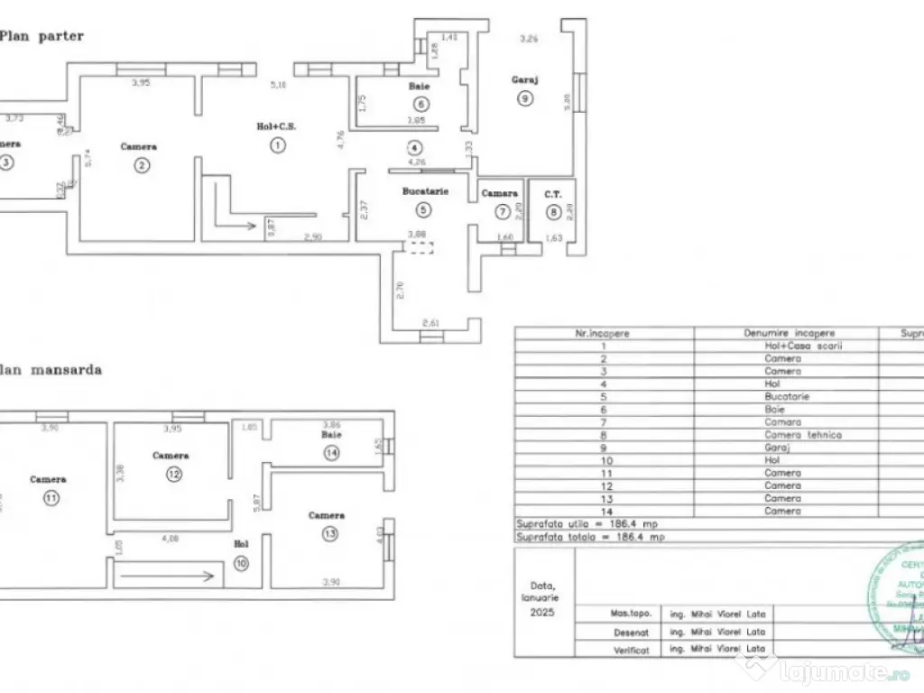
Blitz Imobiliare va propune spre vanzare o casa individuala situata in Ghiroda. Casa este construita cu materiale de calitate conforme cu data constuctiei din 2003.. Dispune de o suprafata utila de 186 mp utili , teren de 886 mp si un front stradal de 32 ml, .Compartimentarea este urmatoarea: Parter: hol+casa scarii, baie, bucatarie inchisa ,2camere, camera tehnica. camara. Etaj: dormitor matrimonial , 3 dormitoare, 1 hol si 1 baie. Sistemul de incalzire este prin centrala proprie cu calorifere. Ocupabila imediat!
Pentru mai multe informatii va stam cu drag la dispozitie!
Cod ofertă / ID BLITZ: P146636
Id intern: P146636
Număr niveluri imobil: 1
Număr Băi: 2
Nr. locuri parcare: 2
Curent
Apă
Canalizare
Specificații
Numar Camere5
Suprafață utilă (m²)186
Suprafata construita (m²)886
Mobilat/Utilat2
Număr niveluri imobil1
ID: 16517679
Contactează vânzătorul
Companie
BLITZ Romania
pe site din 4 Sepactiv:
Nu există recenzii
Mai multe anunțuri ale utilizatorului
Ghiroda, Timis
Despre companie
Loading ad...
Contactează vânzătorul
Companie
BLITZ Romania
pe site din 4 Sepactiv:
Nu există recenzii
Loading ad...
Vezi mai multe anunturi ale acestui vânzator
Toate anunturileAnunturi similare








































































































































































































































































































































































































































