













Descriere anunt
Casa individuala P+1, situata in Bragadiru, strada Safirului (Prelungirea Ghencea), la granita cu Sectorul 5.
Suprafata teren: intre 243 si 433 mp
Casa este individuala si se vinde direct de la dezvoltator.
Acces rapid catre Metrou Raul Doamnei si Centura Bucuresti.
Parc Ghidigeni
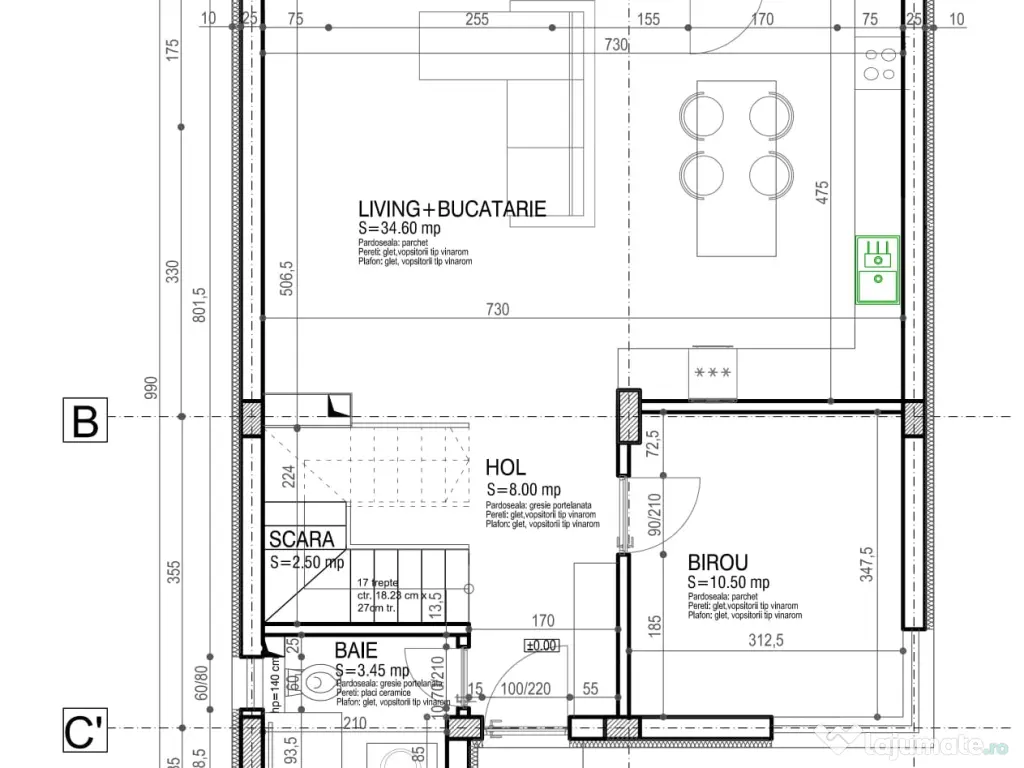
Compartimentare:
Etaj: 3 dormitoare, 3 bai
Parter: 1 baie cu dus, birou, living, bucatarie separata, terasa 12 mp
Finisaje la alegere in limita unui buget
Utilitati:
Apa si canalizare
Gaze naturale
Energie electrica
Internet fibra optica
Termen de predare: septembrie 2026.
Pentru detalii si vizionare, contact telefonic.
Primeresidencevanzari
pe site din 21 MarCa urmare, legile privind drepturile consumatorilor nu se aplică în cazul achizițiilor pe care le faci de la acest vânzător. Este deosebit de important să respecți sfaturile noastre cu privire la siguranță în interacțiunile cu vânzători privați.
Primeresidencevanzari
pe site din 21 Mar












































































































































































































































































































