BLITZ Romania
pe site din 4 Sep
activ: 10 Feb 2026 21:14





304.500 eur
Companie
Descriere anunt
Ansamblul Somesului 15 by Hexagon combină locuințe de 2, 3, 4 camere. Materialele și dotările sunt de cel mai înalt nivel, iar ansamblul respectă standardele nZEB prin soluții sustenabile (energie geotermală, pompe de căldură, panouri solare). În plus, Hexagon are o reputație solidă în piață—acest proiect este ideal pentru clienții care caută confort, calitate și un stil de viață urban responsiv. Apartamentele se predau Finisate. Clădirea îmbină un design rafinat cu eficiența energetică, prin fațadă ventilată cu tehnologie Hytect ce purifică aerul, termoizolație sănătoasă din vată bazaltică de 200 mm și tâmplării placate cu aluminiu, dotate cu sticlă tripan și jaluzele automate pentru protecție solară. Echipamentele high-tech includ un sistem bivalent de încălzire și răcire prin tavane, pompe de căldură geotermale și solare, panouri fotovoltaice pe acoperiș și ventilare cu recuperare de căldură integrată în fațade. Confortul și eficiența sunt amplificate de un sistem smart home pentru controlul încălzirii, răcirii, iluminatului și jaluzelelor, precum și de stațiile de încărcare electrică inteligente din parcarea subterană. Toate acestea sunt completate de o curte interioară amenajată peisagistic ca o oază de liniște și un spațiu de joacă ce continuă firesc peisajul malului Someșului.
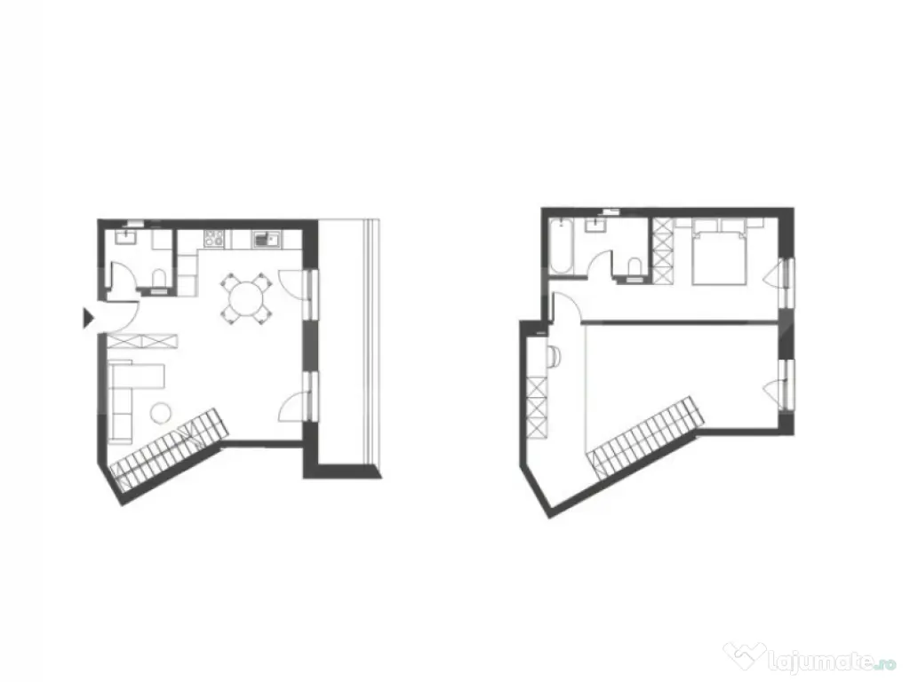
Apartamentul prezentat are o suprafata utila de 68 mp plus o terasa de 11.1 mp. Pretul parcarilor subterane incep de la 18.000 plus TVA.
Cod ofertă / ID BLITZ: P150592
Id intern: P150592
Confort: 1
Tip imobil: Bloc de apartamente
Număr Băi: 2
Specificații
Numar Camere2
Suprafață utilă (m²)67
An constructie2025
Etaj6
CompartimentareSemidecomandat
Număr niveluri imobil6
Mobilat/Utilat3
ID: 16587652
Contactează vânzătorul
Companie
BLITZ Romania
pe site din 4 Sepactiv:
Nu există recenzii
Mai multe anunțuri ale utilizatorului
Cluj-Napoca, Cluj
Despre companie
Loading ad...
Contactează vânzătorul
Companie
BLITZ Romania
pe site din 4 Sepactiv:
Nu există recenzii
Loading ad...
Vezi mai multe anunturi ale acestui vânzator
Toate anunturileAnunturi similare































































































































































































































































































































































