







Descriere anunt
Duplex modern de vânzare – Str. Livezilor, Tulcea
Un spațiu solid, gândit inteligent, gata să devină exact casa pe care ți-o dorești.
Într-o zonă liniștită din Tulcea, pe strada Livezilor, cu arhitectură contemporană, construit la standarde ridicate, vândut la cheie, ideal pentru amenajare personalizată.
Suprafețe echilibrate, ușor de valorificat:
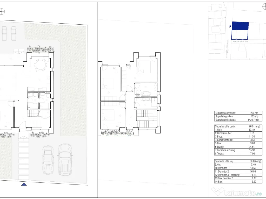
- Suprafață construită: 200 mp
- Suprafață utilă: 143 mp
Compartimentarea este eficientă, logică și orientată spre confortul de zi cu zi.
Construcție nouă:
- Structură din beton armat, durabilă și sigură
- Zidărie Porotherm 30 cm și izolare cu vată mineral bazaltică 15 cm
- Acoperiș finalizat
- Tâmplărie exterioară montată
- Utilități deja disponibile: apă și electricitate
Economisești timp, nervi și bani, dar păstrezi controlul total asupra finisajelor.
Există posibilitatea amenajării unei curți sau terase, un plus real pentru confort, relaxare sau valoare de revânzare.
Fără TVA - economie semnificativă din start
Libertate totală de design interior
Potrivit pentru locuință proprie sau investiție
Zonă calmă, cu acces rapid către puncte de interes
Disponibil imediat
Astfel de proprietăți, în acest stadiu și cu aceste avantaje fiscale, sunt rare.
Teodora Bogdan
pe site din 17 FebCa urmare, legile privind drepturile consumatorilor nu se aplică în cazul achizițiilor pe care le faci de la acest vânzător. Este deosebit de important să respecți sfaturile noastre cu privire la siguranță în interacțiunile cu vânzători privați.
Teodora Bogdan
pe site din 17 Feb













































































































































































































































































































