CRISTIAN-CATALIN MANEA
pe site din 9 Nov
activ: 10 Feb 2026 21:14











110.000 eur
Companie
Descriere anunt
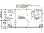
Agentia Acord Imobiliar va propune in vederea achizitionarii, un apartament cu 2 camere, decomandat si 2 balcoane in suprafata de 9 mp , la parterul unui bloc P+4, in zona Inel 1, mobilat , utilat ,cu centrala pe gaz si aer conditionat.
Pentru mai multe detalii, va rugam sa ne contactati pe oricare dintre numerele afisate in oferta, mesaj, whatsapp sau email.
Oferta prezentata in EXCLUSIVITATE de catre Agentia Imobiliara ACORD IMOBILIAR.
Confort: 1
Tip imobil: Bloc de apartamente
Număr Băi: 1
Posibilitate parcare: Nu
Specificații
Numar Camere2
Suprafață utilă (m²)49
An constructie1985
EtajParter
CompartimentareDecomandat
Număr niveluri imobil4
ID: 16717448
Contactează vânzătorul
Companie
CRISTIAN-CATALIN MANEA
pe site din 9 Novactiv:
Nu există recenzii
Mai multe anunțuri ale utilizatorului
Constanta, Constanta
Despre companie
Loading ad...
Contactează vânzătorul
Companie
CRISTIAN-CATALIN MANEA
pe site din 9 Novactiv:
Nu există recenzii
Loading ad...
Vezi mai multe anunturi ale acestui vânzator
Toate anunturileAnunturi similare




















































































































































































































































































































































































































































































