Dan Lontkowschi
Iasi, Iasi
pe site din 16 Nov
activ: 27 Feb 2026 07:12







90.000 eur
Companie
Miroslava, IS
10.02.2026
Număr de telefon validat
Descriere anunt
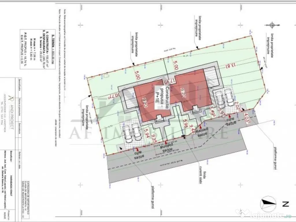
Ag. A.F.Imobiliare va propune spre vanzare un teren in suprafata de 803mp intravilan, suprafata plana, deschidere de 40ml la calea de acces, toate utilitatile sunt aproape, zona de case noi si aproape de sos. principala.
Terenul este amplasat pe un fundac, la 200ml de sos. principala Constantin Langa apropape de magazinul de materiale de constructie Trans Anapet, statie de autobuz aproape, doar 500ml de LIDL, acces rapid spre sos de centura.
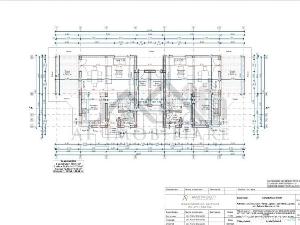
Proiect cu Autorizatie de Construire pentru duplex P 1E (1/2 duplex = Sc-150,47mp
Su- 117,70mp Parter = hol - casa scarii - baie - zona de zi - zona de luat masa - iesire pe terasa - terasa - 14,61mp - lateral spatiu de depozitare.
Etaj = 3 dormitoare - baie mare cu cada - dressing - hol - casa scarii - balcon)
Pret = 90000euro fix
Comision Ag 3%
Specificații
Extravilan / IntravilanIntravilan
Front stradal (metri)24
UtilitățiDa
ID: 16536901
Contactează vânzătorul
Companie
Dan Lontkowschi
pe site din 16 Novactiv:
Nu există recenzii
Mai multe anunțuri ale utilizatorului
Miroslava, Iasi
Despre companie
Loading ad...
Contactează vânzătorul
Companie
Dan Lontkowschi
pe site din 16 Novactiv:
Nu există recenzii
Loading ad...
Vezi mai multe anunturi ale acestui vânzator
Toate anunturileAnunturi similare































































































































































































































