Viorel Nica
pe site din 11 Feb
activ: 10 Feb 2026 21:14




2.200 eur
Companie
Descriere anunt
Proprietar,
inchiriez prin agentie(tel: 0749122233 - pentru detalii si vizionari),
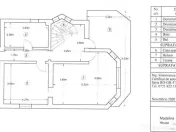
spatiu comercial cu o suprafață de 160,4mp utili + terasa de 5,5mp + 3 locuri de parcare dispuse in fata spatiului(aceasta fiind si una din cele trei zone de acces - a se vedea releveul atasat).
Dispune de centrala termică pe gaz, apa curenta, internet si cablu TV, grup sanitar.
Spatiu se închiriază pe termen mediu(1-2 ani) si lung(peste 2 ani).
Spatiul se preda liber, sau, se poate discuta pe marginea a ceea ce se doreste.
Spatiul se poate folosi pentru activitati diverse, fiind situat la parterul unui bloc de locuinte dintr-o zona rezidentiala, foarte aproape de supermarketul Penny si Parcul Dr. Fermei de pe str. Dr. Fermei, cat si de statia autobuzului 480, oferind acces foarte usor atat cu masina personala, cat si pietonal sau cu mijloacele de transport in comun(8 minute pe jos pana la statia de metrou D.Leonida sau 10 minute pe jos pana la statia de metrou Berceni), zona beneficiind de infrastructura completa.
Se vor discuta la fata locului, in functie de interesul manifestat, toate detaliile.
Prețul poate fi negociabil in funcție de avans, daca se ofera plata in avans pe un an de zile sau in alti termeni si conditii agreate de parti.
Avans standard: (1+1+0,5), din valoarea unei luni de chirie; 0,5 din valoarea chiriei lunare reprezinta comisionul datorat de chirias catre agentie, o singura data, in momentul semnarii contractului de inchiriere.
Suprafaţă totală: 193 m²
An finalizare construcție: 2021
Vitrină: 5.0 m
Stadiu construcţie: Finalizat
Înălţime spaţiu: 3.0 m
Număr încăperi: 1
Număr Grupuri Sanitare: 1
Posibilitate parcare: Da
Nr. locuri parcare: 3
Tip imobil: Bloc de apartamente
Specificații
Suprafață utilă (m²)166
ID: 16791631
Contactează vânzătorul
Companie
Viorel Nica
pe site din 11 Febactiv:
Nu există recenzii
Mai multe anunțuri ale utilizatorului
Popesti Leordeni, Bucuresti-Ilfov
Despre companie
Loading ad...
Contactează vânzătorul
Companie
Viorel Nica
pe site din 11 Febactiv:
Nu există recenzii
Loading ad...
Vezi mai multe anunturi ale acestui vânzator
Toate anunturileAnunturi similare






































































































































































































































































































































































