Viorica Ombun
pe site din 3 Oct
activ: 10 Feb 2026 21:14















215.000 eur
Companie
Descriere anunt
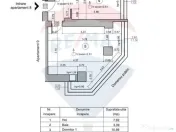
Teren 498 mp cu casa Colentina, str. Nicolae Apostol deschidere 24 ml ideal duplex investitie
De vanzare teren 498 mp cu deschidere stradala 24 ml, situat pe strada Nicolae Apostol, zona Colentina, zona foarte linistita, aproape de Kaufland, OMV , scoli si magazine.
Pe teren exista o casa locuibila, cu amprenta de aproximativ 60 mp utili, cu anexe, toate utilitatile, centrala termica, acces asfaltat.
Terenul beneficiaza de certificat de urbanism, cu POT 60% si CUT 1.2, regim de inaltime permis P+1 (posibil si mansarada), fiind ideal pentru constructia unei locuinte individuale sau duplex.
Zona este bine conectata, la aproximativ 7 minute de Carrefour Colentina si 5 minute de statia STB, cu acces rapid catre principalele artere ale orasului. Strada este una cu deschidere mare si foarte civilizata.
Ideal pentru constructie rezidentiala intr-o zona accesibila si in dezvoltare.
Acte de proprietate verificate.
Zona linistita, locuita, cu infrastructura completa.
Pentru detalii suplimentare sau programarea unei vizionari, nu ezitati sa ma contactati.
Specificații
Extravilan / IntravilanIntravilan
Front stradal (metri)24
UtilitățiDa
Construcție pe terenNu
ID: 16737817
Contactează vânzătorul
Companie
Viorica Ombun
pe site din 3 Octactiv:
Nu există recenzii
Mai multe anunțuri ale utilizatorului
Bucuresti, Bucuresti-Ilfov
Despre companie
Loading ad...
Contactează vânzătorul
Companie
Viorica Ombun
pe site din 3 Octactiv:
Nu există recenzii
Loading ad...
Vezi mai multe anunturi ale acestui vânzator
Toate anunturileAnunturi similare

































































































































































































