Eduard Klaus
pe site din 14 Mar
activ: 10 Feb 2026 21:14













350.000 eur
Companie
Descriere anunt
R.E.A. Imobiliare va prezinta spre vanzare un apartament cu o poziționare strategică în nordul Capitalei, într-o zonă liniștită, fără trafic, pe o stradă accesibilă doar riveranilor, cu un design arhitectural modern, care maximizează spațiul de locuit, proiectul UP Boutique îmbină toate caracteristicile care definesc conceptul de clădire de tip boutique.
UP Boutique este o clădire unică, cu finisaje premium, prietenoasă cu mediul înconjurător, formată din Subsol, parter și 4 etaje respectiv 16 apartamente. Este o reuniune aarhitecturii de designer, situată într-o zonă atractivă, cu școli, centre medicale, spații comerciale și de birouri, locuri de joacă, dar și nenumărate opțiuni de divertisment. Este locul în care îți dorești să trăiești și să creezi amintiri pentru o viață. Este mai mult decât o achiziție imobiliară -este o investiție pentru viitor.
Este pentru cei care nu fac compromisuri la calitate.
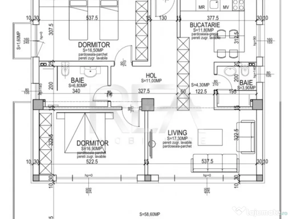
Apartamentul este situat la etajul 3 al imobilului, pe latura de sudestnord, având o suprafață construită de 107.50 mp și utilă de 88.50 mp, la care se adaugă o terasă superbă cu o suprafață de 58.60 mp și un balcon de 1.60 mp. Acest apartament satisface cele mai exigente cerințe din punct de vedere al confortului și al dotărilor si este compus din:
HOL –11.00 MP
LIVING –17.30 MP
BUCĂTĂRIE –11.80 MP
GRUP SANITAR –3.90 MP
BAIE –6.80 MP
DORMITOR –16.90 MP
DORMITOR –16.50 MP
TERASĂ –58.60 MP
BALCON -1.60 MP
Clădirea este prevăzută cu 20 de locuri de parcare, din care 14 în sistem automat de tip Klaus concepute inclusiv pentru SUVuri cu greutate de până la 2600 kg și înălțime de până la 2 metri.
Pret parcare exterioara(Klaus): 20.000 euro
Pret parcare interioara(subsol): 25.000 euro
Fie că vorbim despre exterior sau interior, clădirea este proiectată într-un stil inovator, dotată cu panouri fotovoltaice care acoperă consumul de energie pentru spațiile comune. Finisajele exterioare și interioare sunt din gama PREMIUM: tâmplărie SALAMANDER cu geam TRIPAN, gresie și faianță rectificate DELTA STUDIO, încălzire în pardoseală, Module Termo Hidraulice DANFOSS, parchet de 10 mm grosime, ușă acces în apartament fonoizolată și blindată, ușile din interiorul apartamentului din gama premium cu balamale ascunse și structură plină.
Proprietatea este amplasata intr-o clădire sănătoasă și eficientă energetic, conform conceptului european NZEB (Nearly Zero-Energy Building),care reduce semnificativ costurile de întreținere și consumul de energie în spațiile comune. Facturile mici sau chiar inexistente pentru utilitățile comune, înălțimea generoasă a camerelor (2,8 m), încălzirea în pardoseală, suprafețele vitrate ample, terasele spațioase și zonele verzi amenajate cu grijă reflectă standardul ridicat utilizat.
Designul arhitectural și finisajele de excepție fac din UP Boutique locul unde vrei să trăiești și să aduni amintiri!
Pentru mai multe detalii si vizionari, ne puteti contacta telefonic, specificand codul de identificare P7581
Id intern: P7581
Confort: 1
Tip imobil: Bloc de apartamente
Număr Băi: 2
Specificații
Numar Camere3
Suprafață utilă (m²)88
An constructie2025
Etaj3
CompartimentareDecomandat
Număr niveluri imobil4
Mobilat/Utilat3
ID: 16535527
Contactează vânzătorul
Companie
Eduard Klaus
pe site din 14 Maractiv:
Nu există recenzii
Mai multe anunțuri ale utilizatorului
Bucuresti, Bucuresti-Ilfov
Despre companie
Loading ad...
Contactează vânzătorul
Companie
Eduard Klaus
pe site din 14 Maractiv:
Nu există recenzii
Loading ad...
Vezi mai multe anunturi ale acestui vânzator
Toate anunturileAnunturi similare
































































































































































































































































































































































































