Elisabeta Chirca
pe site din 1 Oct
activ: 10 Feb 2026 21:14






3.100 eur
Companie
Descriere anunt
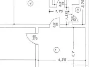
Imobiliar Expert Grup va propune spre inchiriere spatiu comercial in suprafata de 54 mp utili in zona Bd Elisabeta- Universitatea București Spatiul dispune de apa, canalizare, curent, vitrina 7 m . Zona excelenta pentru cofetarie, cafenea
Suprafaţă totală: 54 m²
An finalizare construcție: 1960
Vitrină: 7.0 m
Stadiu construcţie: Finalizat
Număr Grupuri Sanitare: 1
Posibilitate parcare: Nu
Tip imobil: Spaţiu stradal
Specificații
Suprafață utilă (m²)54
ID: 16791885
Contactează vânzătorul
Companie
Elisabeta Chirca
pe site din 1 Octactiv:
Nu există recenzii
Mai multe anunțuri ale utilizatorului
Bucuresti, Bucuresti-Ilfov
Despre companie
Loading ad...
Contactează vânzătorul
Companie
Elisabeta Chirca
pe site din 1 Octactiv:
Nu există recenzii
Loading ad...
Vezi mai multe anunturi ale acestui vânzator
Toate anunturileAnunturi similare























































































































































































