Georgiana Lixandru
pe site din 27 Iun
activ: 10 Feb 2026 21:14











210.000 eur
Companie
Descriere anunt
R.E.A. Imobiliare
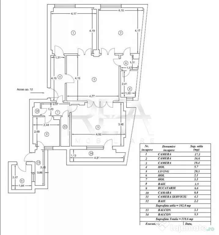
Apartament camere , semidecomandat, la etajul 1 intr-un bloc finalizat in anul 1936 cu regim de inaltime S+D+5, expertizat si incadrat la clasa de risc R2, renovat integral in 2025, situat pe Bulevardul Schitu Magureanu vis-a vi de Parcul Cismigiu.
Suprafata totala 119,6 mp: utila 102 mp, balcoane 8,6 mp.
Sistem incalzire: Centrala proprie /calorifere. Toate sistemele de instalatii sunt noi, renovarea s-a facut "de la caramida"
Vecinatatile includ: Parcul Cismigiu, Sala Palatului, Centrul Vechi, Piata Odeon, Hotel Capsa, Ateneul Roman, Muzeul National de Arta, Muzeul National de Muzica, Spitalul Clinic Sfanta Maria, Unirii Shopping Center, magazine, scoli, farmacii, restaurante, cafenele, teatre, sali de spectacol si institutii educationale.
Acces la transportul în comun-> 3 minute pana la statiile STB sau 5 minute pana la metrou Izvor.
Informatiile tehnice au caracter orientativ, acestea fiind preluate de la proprietari. Pentru detalii si vizionari, va rugam sa ne contactați, specificand codul de identificare P7255.
Id intern: P7255
Confort: 1
Tip imobil: Bloc de apartamente
Număr Băi: 2
Specificații
Numar Camere3
Suprafață utilă (m²)102
An constructie1946
Etaj1
CompartimentareSemidecomandat
Număr niveluri imobil7
Mobilat/Utilat3
ID: 16433257
Contactează vânzătorul
Companie
Georgiana Lixandru
pe site din 27 Junactiv:
Nu există recenzii
Mai multe anunțuri ale utilizatorului
Bucuresti, Bucuresti-Ilfov
Despre companie
Loading ad...
Contactează vânzătorul
Companie
Georgiana Lixandru
pe site din 27 Junactiv:
Nu există recenzii
Loading ad...
Vezi mai multe anunturi ale acestui vânzator
Toate anunturileAnunturi similare






















































































































































































































































































































































































