BLITZ Romania
pe site din 4 Sep
activ: 10 Feb 2026 21:14











160.000 eur
Companie
Descriere anunt
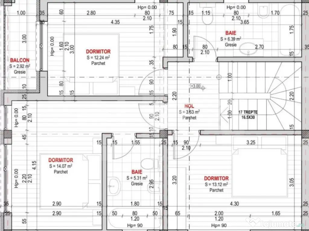
Blitz ofera spre vanzare ansamblu premium de case ,situat intr-o zona cautata , in plina dezvoltare .Proiectul ansamblului este conceput pentru case cuplate cu cate doua unitati locative..Suprafata utila este de 118 mp ,iar terenul fiecarei unitati va fi de cca 265mp. Compartimentarea este foarte practic gandita pentru fiecare casa si anume la parter avem un living spatios cu acces la terasa si bucatarie open space,(sau cu posibilitate de inchidere),hol,un dormitor si baie .La etaj sunt trei dormitoare din care , un dormitor matrimonial cu baie proprie si inca o baie pe hol ce le deserveste pe celalalte doua . Casele vor fi construite din caramida de 25 cm .Se vor preda la stadiul de semifinisat interior si finisat exterior si cu : -centrala termica proprie si incalzire in pardoseala pe intreaga suprafata; -ferestre termopan cu 7 camere si sticla tripan; -termoziolatie cu polisitren cu 10 cm EPS 80; -pereti gletuiti si instalatii sanitare si electrice la pozitie; -acoperis din tigla; -curtea imprejmuita si amenajari alee acces si parcari pavate.De asemenea, contracost centrala termica pe gaz poate fi inlocuita cu pompa de caldura. Casa are regim de inaltime P+E, front 10 ml, iar accesul se face de pe un drum asfaltat. In curte exista posibilitatea de a parca 2 masini intr-un spatiu amenajat.Accesul se face usor si este aproape de mijloacele de transport in comun.Termenul de finalizare estimat este sfarsitul acestui an. In incinta complexului se vor amenaja doua spatii de joaca si zona verde.
La pretul afisat se adauga TVA .
Cod ofertă / ID BLITZ: P3041
Id intern: P3041
Număr niveluri imobil: 1
Număr Băi: 3
Nr. locuri parcare: 2
Specificații
Numar Camere5
Suprafață utilă (m²)118
An constructie2022
Suprafata construita (m²)265
Mobilat/Utilat3
Număr niveluri imobil1
ID: 15561605
Contactează vânzătorul
Companie
BLITZ Romania
pe site din 4 Sepactiv:
Nu există recenzii
Mai multe anunțuri ale utilizatorului
Cluj-Napoca, Cluj
Despre companie
Loading ad...
Contactează vânzătorul
Companie
BLITZ Romania
pe site din 4 Sepactiv:
Nu există recenzii
Loading ad...
Vezi mai multe anunturi ale acestui vânzator
Toate anunturileAnunturi similare
























































































































































































































































































































































