Alina Stroe
Constanta, Constanta
pe site din 15 Apr
activ: 10 Feb 2026 21:14



185.130 eur
Companie
Descriere anunt
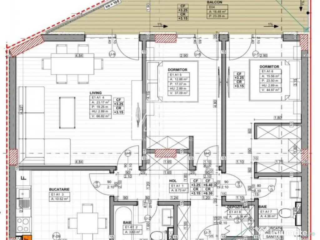
Acest apartament cu 3 camere este alegerea ideală pentru o familie care își dorește un spațiu generos, compartimentat practic și poziționat într-o zonă liniștită. Are o suprafață utilă de 94,04 mp, din care 15,35 mp balcon – perfect pentru momentele de relaxare în aer liber.
Compartimentare:
- Living spațios și luminos
- Dormitor matrimonial cu dressing
- Bucătărie închisă
- 2 băi
- Balcon generos – 15,35 mp
Locuința face parte dintr-un bloc tip boutique cu regim de înălțime P+3, amplasat într-o zonă aerisită din Palazu Mare, pe strada Liviu Rebreanu. Imobilul este dotat cu lift și include doar 9 apartamente, oferind intimitate și confort într-un cadru organizat și liniștit.
- Termen de finalizare: aprilie 2026
Apartamentul se predă finisat la alb, cu:
- Încălzire în pardoseală
- Instalații electrice și sanitare pe poziție
- Pereți gletuiți
- Ușă metalică de intrare
- Izolație exterioară
- Loc de parcare inclus în preț
O locuință modernă, ideală pentru cei care caută spațiu, funcționalitate și un plus de intimitate într-un imobil cu număr redus de apartamente.
** Prețul afișat include TVA 21%.
Id intern: P3297
Confort: 1
Tip imobil: Bloc de apartamente
Număr Băi: 2
Comision cumpărător: 0%
Specificații
Numar Camere3
Suprafață utilă (m²)96
An constructie2025
Etaj1
CompartimentareDecomandat
Număr niveluri imobil3
ID: 16539449
Contactează vânzătorul
Companie
Alina Stroe
pe site din 15 Apractiv:
Nu există recenzii
Mai multe anunțuri ale utilizatorului
Constanta, Constanta
Despre companie
Loading ad...
Contactează vânzătorul
Companie
Alina Stroe
pe site din 15 Apractiv:
Nu există recenzii
Loading ad...
Vezi mai multe anunturi ale acestui vânzator
Toate anunturileAnunturi similare








































































































































































































































































































































































































































