Alina Stroe
Constanta, Constanta
pe site din 15 Apr
activ: 10 Feb 2026 21:14



131.890 eur
Companie
Descriere anunt
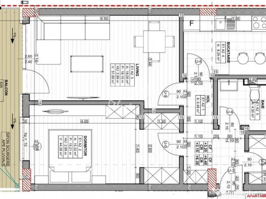
Acest apartament cu 2 camere oferă un spațiu generos și bine organizat, cu o suprafață utilă de 68,33 mp, din care 13,16 mp balcon – locul perfect pentru relaxare în aer liber. Ideal pentru locuit sau investiție, apartamentul este situat într-un bloc tip boutique P+3, amplasat într-o zonă liniștită din Palazu Mare, pe strada Liviu Rebreanu.
Compartimentare:
-Living luminos – 18 mp
- Dormitor confortabil – 15,32 mp
-Bucătărie separată
-Baie bine proporționată
-Spațiu de depozitare – 2,57 mp
- Balcon generos – 13,16 mp
Imobilul cu doar 9 apartamente este dotat cu lift, oferind un cadru intim și funcțional, ideal pentru cei care apreciază confortul și discreția.
Termen de finalizare: aprilie 2026
Apartamentele se predau finisate la alb, cu:
- Încălzire în pardoseală
- Instalații electrice și sanitare pe poziție
- Pereți gletuiți
- Ușă metalică de intrare
- Izolație exterioară
- Loc de parcare inclus în preț
Un proiect modern, cu un număr restrâns de unități locative, ideal pentru un stil de viață echilibrat, într-o zonă cu acces facil la tot ce contează.
** Prețul afișat include TVA 21%.
Id intern: P3296
Confort: 1
Tip imobil: Bloc de apartamente
Număr Băi: 1
Comision cumpărător: 0%
Specificații
Numar Camere2
Suprafață utilă (m²)68
An constructie2025
Etaj1
CompartimentareDecomandat
Număr niveluri imobil3
ID: 16539435
Contactează vânzătorul
Companie
Alina Stroe
pe site din 15 Apractiv:
Nu există recenzii
Mai multe anunțuri ale utilizatorului
Constanta, Constanta
Despre companie
Loading ad...
Contactează vânzătorul
Companie
Alina Stroe
pe site din 15 Apractiv:
Nu există recenzii
Loading ad...
Vezi mai multe anunturi ale acestui vânzator
Toate anunturileAnunturi similare








































































































































































































































































































































































































































