BLITZ Romania
pe site din 4 Sep
activ: 10 Feb 2026 21:14






341.835 eur
Companie
Descriere anunt
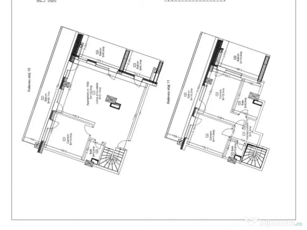
Vă prezentăm un apartament bine compartimentat, situat la etajele 10 și 11 ale unui Ansamblu Rezidential . Cu o suprafață utilă generoasă, compartimentare funcțională și balcoane însumând 64,1 mp, acest apartament este ideal pentru o familie care își dorește confort, intimitate și priveliști panoramice.
Etajul 1 (Parter – Etaj 10):
• Living cu bucătărie open-space – 51,4 mp – un spațiu aerisit, luminos și ideal pentru relaxare sau socializare;
• Dormitor – 14 mp – perfect pentru oaspeți sau birou;
• Baie – 3 mp – dotată eficient pentru utilitate zilnică;
• Acces direct către balcoanele spațioase, cu vedere deschisă asupra orașului.
Etajul 2 (Etaj 11):
• Dormitor principal – 15,9 mp – spațios și luminos;
• Dormitor secundar – 11,8 mp – potrivit pentru copil sau birou;
• Baie principală – 6,9 mp – confortabilă, ideală pentru întreaga familie;
• Baie de serviciu – 2,6 mp;
• Hol și spațiu de depozitare – 4,3 mp – util pentru organizare suplimentară;
• Acces la balcon de la fiecare dormitor, aducând lumină naturală și un plus de relaxare.
Caracteristici generale:
• Suprafață totală utilă generoasă;
• Balcoane în suprafață de 64,1 mp – ideale pentru amenajare ca zonă de relaxare, grădină urbană sau loc de luat masa în aer liber;
• Compartimentare eficientă, cu separare clară între zona de zi și zona de noapte;
• Ideal pentru familii sau pentru cei care apreciază spațiul și intimitatea oferită de locuințele pe două niveluri.
Cod ofertă / ID BLITZ: P146373
Id intern: P146373
Confort: 1
Tip imobil: Bloc de apartamente
Număr Băi: 3
Nr. locuri parcare: 2
Specificații
Numar Camere4
Suprafață utilă (m²)109
An constructie2021
Etaj10
CompartimentareDecomandat
Număr niveluri imobil15
Mobilat/Utilat3
ID: 16517935
Contactează vânzătorul
Companie
BLITZ Romania
pe site din 4 Sepactiv:
Nu există recenzii
Mai multe anunțuri ale utilizatorului
Cluj-Napoca, Cluj
Despre companie
Loading ad...
Contactează vânzătorul
Companie
BLITZ Romania
pe site din 4 Sepactiv:
Nu există recenzii
Loading ad...
Vezi mai multe anunturi ale acestui vânzator
Toate anunturileAnunturi similare













































































































































































































































































































































































































