Ureche Pavel
pe site din 8 Aug
activ: 10 Feb 2026 21:14









149.435 eur
Companie
Descriere anunt
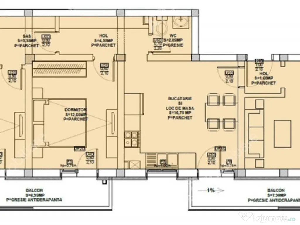
De vanzare in zona Doamna Stanca din Selimbar apartament cu 3 camere decomandate, 2 bai, 2 balcoane si loc propriu de parcare, situat la etajul intermediar 1 din 3 al unui imobil constructie noua 2025 care face parte dintr-un ansamblu rezidential format din 8 blocuri cu regim de inaltime Parter 3 Etaje Pod care dispune de locuri de parcare atat pentru locatari cat si pentru vizitatori, spatii verzi comune si gradini proprii dedicate apartamentelor de la parter, loc de joaca pentru copii si spatii comerciale situate in imobilele pozitionate la strada Doamna Stanca.
Din punct de vedere structural imobilele sunt edificate pe structura din beton si zidarie din caramida cu grosimea de 30 cm, anvelopare termica exterioara realizata din polistiren expandat de 10 cm cu densitatea EPS 80 si zugravit cu decorativa siliconata de exterior, usa de acces din PVC cu inchidere electro-magnetica si interfon, acoperis tip sarpanta cu invelitoare din tigla marca Bramac, plansee din beton intre etaje inclusiv intre etajul 3 si pod.
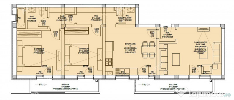
Apartamentul are 77,80 mp utili, acesta fiind compus din camera de zi 18.70 mp, cele doua dormitoare dintre care cel matrimonial de 13,70 mp iar cel secundar 12,60 mp, bucataria separata cu dinning de 16,75 mp, 2 bai iar cea principala de 4.50 mp dotata cu geam pentru aerisirea naturala si cada si o toaleta de serviciu 2.05 mp, hol de acces 1,60 mp si un alt hol de 7,90 mp prin intermediul caruia se face accesul in camere si unde poate fi pozitionat un dressing generos.
Separat de suprafata utila a apartamentului acesta dispune si de 2 balcoane, unul de 7.90 mp in care accesul se face din camera de zi si bucatarie si un altul de 6,95 in care se face accesul din dormitoare.
Parcarea se realizeaza pe propriul loc de parcare situat in fata blocului.
Apartamentul se preda la stadiul de alb si dispune de urmatoarele dotari si finisaje:
-Usa de metal anti-efractie la intrarea in apartament placata cu MDF;
-Pereti tencuiti ( tencuiala pe baza de var-ciment ), gletuiti si zugraviti cu lavabila alba in 2 straturi;
-Pardoseli amenajate cu sapa autonivelanta semiuscata elicopterizata pregatite pentru parchet-gresie;
-Tamplarie PVC marca Sallamander cu 5 camere si 3 foi de sticla cu Low-E, glafuri exterioare de aluminiu si PVC interior;
-Centrala proprie pe gaz marca Bosch in condensare si incalzire in pardoseala;
-Distribuitor pentru instalatia de incalzire;
- Racorduri apa-canal in bucatarie si bai;
- Racord gaz metan la bucatarie;
-Instalatii electrice trase pe pozitie cu tablou general si sigurante pentru consumatorii de putere;
-Instalatii pentru TV si internet trase pe pozitie.
Valoarea apartamentului la plata unui avans de 15% este de 149.435 TVA Inclus, se poate achizitiona si prin credit ipotecarID intern: 3007.
Confort: 1 sporit
Tip imobil: Bloc de apartamente
Număr Băi: 2
Posibilitate parcare: Da
Nr. locuri parcare: 1
Specificații
Numar Camere3
Suprafață utilă (m²)78
An constructie2025
Etaj1
CompartimentareDecomandat
Număr niveluri imobil3
ID: 16640156
Contactează vânzătorul
Companie
Ureche Pavel
pe site din 8 Augactiv:
Nu există recenzii
Mai multe anunțuri ale utilizatorului
Sibiu, Sibiu
Despre companie
Loading ad...
Contactează vânzătorul
Companie
Ureche Pavel
pe site din 8 Augactiv:
Nu există recenzii
Loading ad...
Vezi mai multe anunturi ale acestui vânzator
Toate anunturileAnunturi similare














































































































































































































































































































































































