Ureche Pavel
pe site din 8 Aug
activ: 10 Feb 2026 21:14









141.570 eur
Companie
Descriere anunt
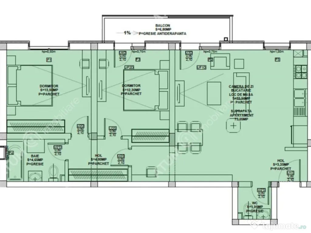
De vanzare apartament de 3 camere decomandate cu 2 bai si balcon, situat la etajul intermediar 1 din 3, cu doar 4 apartamente pe palier, situat intr-un imobil constructie noua aflat in zona Doamna Stanca.
Apartamentul are 94,46 mp construiti si 73,05 mp utili, acesta fiind compus dintr-un living open space cu bucataria de 32,50 mp, doua dormitoare dintre care cel matrimonial de 13,50 mp iar cel secundar 12,30 mp, 2 bai iar cea principala 4,65 mp dotata cu geam de aerisire si cada iar cea de serviciu 1,95 mp, hol de acces 3,35 mp unde poate fi pozitionat cuierul cu pantofar iar al doilea hol 4,80 mp unde poate fi incastrat un dressing spatios.
Separat de suprafata utila apartamentul dispune si de un balcon 6,80 mp in care accesul se face atat din camera de zi cat si dintr-un dormitor.j
Parcarea se realizeaza pe propriul loc de parcare situat in fata blocului.
Apartamentul se preda la stadiul de alb si dispune de urmatoarele dotari si finisaje:
-Usa de metal anti-efractie la intrarea in apartament placata cu MDF;
-Pereti tencuiti ( tencuiala pe baza de var-ciment ), gletuiti si zugraviti cu lavabila alba in 2 straturi;
-Pardoseli amenajate cu sapa autonivelanta semiuscata elicopterizata pregatite pentru parchet-gresie;
-Tamplarie PVC marca Sallamander cu 5 camere si 3 foi de sticla cu Low-E, glafuri exterioare de aluminiu si PVC interior;
-Centrala proprie pe gaz marca Bosch in condensare si incalzire in pardoseala;
-Distribuitor pentru instalatia de incalzire;
- Racorduri apa-canal in bucatarie si bai;
- Racord gaz metan la bucatarie;
-Instalatii electrice trase pe pozitie cu tablou general si sigurante pentru consumatorii de putere;
-Instalatii pentru TV si internet trase pe pozitie.
Din punct de vedere structural imobilele sunt edificate pe structura din beton si zidarie din caramida cu grosimea de 30 cm, anvelopare termica exterioara realizata din polistiren expandat de 10 cm cu densitatea EPS 80 si zugravit cu decorativa siliconata de exterior, usa de acces din PVC cu inchidere electro-magnetica si interfon, acoperis tip sarpanta cu invelitoare din tigla marca Bramac, plansee din beton intre etaje inclusiv intre etajul 3 si pod.
Valoarea apartamentului la plata unui avans de 15% este de 141,570 TVA Inclus, se poate achizitiona si prin credit ipotecar. ID intern: 3009.
Confort: 1 sporit
Tip imobil: Bloc de apartamente
Număr Băi: 2
Posibilitate parcare: Da
Nr. locuri parcare: 1
Specificații
Numar Camere3
Suprafață utilă (m²)73
An constructie2025
Etaj1
CompartimentareDecomandat
Număr niveluri imobil3
ID: 16641158
Contactează vânzătorul
Companie
Ureche Pavel
pe site din 8 Augactiv:
Nu există recenzii
Mai multe anunțuri ale utilizatorului
Sibiu, Sibiu
Despre companie
Loading ad...
Contactează vânzătorul
Companie
Ureche Pavel
pe site din 8 Augactiv:
Nu există recenzii
Loading ad...
Vezi mai multe anunturi ale acestui vânzator
Toate anunturileAnunturi similare




















































































































































































































































































































































































