Adrian Corches
pe site din 9 Apr
activ: 10 Feb 2026 21:14









128.000 eur
Companie
Descriere anunt
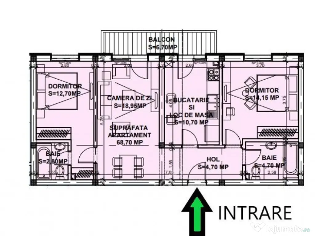
0 COMISION! De vanzare apartament complet finisat la cheie de 3 camere cu 2 bai si balcon, cu o suprafata totala de 82 mp, care detine si propriul loc de parcare,pozitionat intr-un bloc constructie noua cu doar 3 etaje din zona Doamna Stanca, Selimbar.
Apartamentul este pozitionat intr-un bloc constructie noua, are o structura pe cadre, cu stalpi de sustinere din beton armat si zidarie din caramida. Imobilul gazduieste 12 apartamente ( 3 apartamente pe nivel ) iar din punct de vedere structural acesta beneficiaza de izolatie termica exterioara de 10 cm, cu densitatea EPS 80, acoperita cu tencuiala decorativa siliconata, pentru un aspect placut si rezistenta in timp, acoperisul este tip sarpanta cu invelitoare din tigla marca Bramac.
Locuinta beneficaiza de o compartimentare practica, precum holul de acces 4.70 mp unde poate fi amenajata zona de primire cu pantofar si cuier, baia principala de 4.70 mp, dormitorul secundar de 14.15 mp destinat copilului sau a oaspetilor, bucataria separata de 10.70 mp care permite amenajarea unui loc de luat masa, livingul de 18.95 mp care de asemenea poate fi amenajat cu zona de zi destinata relaxarii cat si pentru pozitionarea unui dinning incapator pentru mese in familie, dormitorul matrimonial de 17.70 mp care beneficiaza de propria lui baie de 2.80 mp amenajata cu dus, toate acestea insumand suprafata de 68.70 mp utili
Balconul este icirc;n suprafata de 6.70 mp in care acces se face atat din living cat si din bucatarie.
Locul de parcare inclus in pret se afla in fata imobilului iar acesta este delimitat si inscriptionat.
Locuinta se preda la stadiul de cheie cu urmatoarele finisaje standar:
- Usa metalica de acces in apartament;
- Interfon montat pe pozitie;
- Pereti interiori din caramida, tencuiti ( tencuiala pe baza de var-ciment ), doua maini de glet si zugraviti cu 2 maini de lavabila alba;
- Tamplarie PVC marca Salamander cu 5 camere si 3 foi de sticla, glafuri exterioare din aluminiu si PVC interior;
- Centrala proprie pe gaz marca Bosch in condensare cu senzor de gaz si incalzire in pardoseala;
- Racorduri apa-canal in bucatarie si bai
- Racord gaz metan in bucatarie
- Instalatii electrice trase pe pozitie cu tablou general si sigurante pentru consumatorii de putere, instalatii pentru TV si internet trase pe pozitie;
- Contorizari individuale si contoare montate pentru gaz, curent si apa
Predarea apartamentului se va face la stadiul de cheie care include: parchet laminat, gresie, faianta, obiecte sanitare ( vas wc, lavoar, cabina de dus/ cada ), usi interioare, prize si intrerupatoare functionale, alese chiar de dumneavoastra.
Ansamblul rezidential detine infrastructura necesara din punct de vedere al traficului pietonat si auto, spatii verzi amenajate cu gazon, arbusti si plante decorative, locul de joaca pentru copii prevazut cu nisip, tobogane si leagane, locurile de parcare special amenajate, delimitate, iluminate si inscriptionate ca atare.
Casa scarii se va preda complet amenajata cu: pereti tencuiti si zugraviti cu vopsea lavabila, plafoniere cu senzor de miscare, pardoseala placata cu gresie antiderapanta, interfon la intrare, usa de acces din PVC cu inchidere electromagnetica.
Valoarea apartamentului la plata unui avans de 15% este 128.000 euro TVA inclus, acesta poate fi achizitionat si prin credit bancar. ID intern: 2426.
Confort: 1
Tip imobil: Bloc de apartamente
Număr Băi: 2
Posibilitate parcare: Da
Nr. locuri parcare: 1
Specificații
Numar Camere3
Suprafață utilă (m²)69
An constructie2023
Etaj2
CompartimentareSemidecomandat
Număr niveluri imobil3
Mobilat/Utilat3
ID: 16036864
Contactează vânzătorul
Companie
Adrian Corches
pe site din 9 Apractiv:
Nu există recenzii
Mai multe anunțuri ale utilizatorului
Sibiu, Sibiu
Despre companie
Loading ad...
Contactează vânzătorul
Companie
Adrian Corches
pe site din 9 Apractiv:
Nu există recenzii
Loading ad...
Vezi mai multe anunturi ale acestui vânzator
Toate anunturileAnunturi similare




































































































































































































































































































































































