Adrian Corches
pe site din 9 Apr
activ: 10 Feb 2026 21:14







114.000 eur
Companie
Descriere anunt
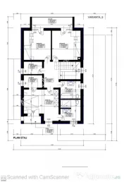
0 COMISION! De vanzare apartament nou (constructie 2024 ) cu 2 camere decomandate si gradina proprie de 53 mp si balcon in Selimbar zona Doamna Stanca, acesta beneficiaza de loc parcare inclus, situat in fata cladirii, amenajat si marcat. Suprafata utila a apartamentului estede 54.85 mp si sunt compartimentati astfel: la intrarea in apartament avem un hol de 6.91 mp care ofera accesul spre toate camerele locuintei. Livingul spatios de 18.71 mp, bucataria de 8.72 mp si dormitorul de 12.83 mp, cu vedere spre gradina, au acces la balconul de 2.64 mp care va ofera deschiderea si intrarea in gradina proprie, a locuintei, pe care aveti posibilitatea sa o amenajati dupa gusturile si interesele dumnevoastra. Baia este de 4.48 mp , iar debaraua de 3.19 mp este locul perfect pentru a depozita lucruri sau sa o transformati intr-un dresing al holului.
Locuinta face parte dintr-un complex rezidential nou si spatios ( spatiu intre cladiri de 40 m ) , securizat cu bariera care se deschide cu un cod de acces sau aplicatie mobila. Iluminatul stradal este de tip LED cu incarcare de la soare. Regimul de inaltime al complexului este redus ( parter 3 etaje pod ).
Fatada cladirii are un termosistem de 10 cm si este finisata cu vopsea decorativa siliconata ce ofera protectie si un aspect placut. Ca si elemente de rezistenta, gasim aici o structura din beton armat cu zidarie portanta ce asigura un indice ridicat de protectie termica si fonica a camerelor, cu o buna rezistenta, inclusiv pentru montarea prin suspendare pe pereti a mobilei.
Apartamentul se preda complet finisat, la cheie, cu detalii elegante si functionale, cuprinzand parchet laminat, usi de interior, prize si intrerupatoare. Bucataria si baia sunt dotate cu gresie si faianta de calitate, iar aceasta din urma include obiectele sanitare (cabina de dus/cada, lavoar, vas de toaleta si baterii pentru cada si lavoar). In plus, aveti oportunitatea de a alege aceste finisaje, astfel incat sa reflecte stilul si preferintele dumneavoastra.
Alte detalii si dotari:
- Usa de metal la intrarea in apartamente, placata cu panou MDF;
- Pereti tencuiti (tencuieli pe baza de var-ciment), gletuiti si zugraviti in lavabila alba;
- Tamplarie PVC cu 5 camere si 3 foi de sticla (lowE-float-lowE solar), feronerie Maco Multimatic si glafuri interior-exterior;
- Incalzire prin pardoseala, centrala termica proprie in condensatie si detector gaz;
- Sisteme electrice din cupru trase prin copex cu tablou general si sigurante pentru consumatorii de putere;
- Instalatii pentru curentii slabi: Internet, Telefon, TV;
- Racorduri apa-canal in bucatarie si bai;
- Racord gaz metan la bucatarie;
- Rupere termica intre balcon si placa din profil de 10 cm montat la tamplarie si polistiren extrudat;
- Instalatii pentru gaz, curent electric si apa, contorizare individuala si contoare montate.
Un beneficiu suplimentar al complexului este faptul ca are acces facil si rapid in diferite locuri de interes precum: Mall-ul Shopping City Selimbar, Piata Agroalimentara Rahovei, multiple institutii de invatamant, statii de transport in comun, institutii bancare, spatii verzi etc.
Valoare de achizitie:
- Pentru un avans de 75% pretul este de 114.000 euro, pentru un avans de 50% pretul este de 116.000 euro, pentru un avans de 15% pretul este de 118.000 euro
Poate fi achizitionat si prin credit bancar. ID intern: 2419.
Confort: 1 sporit
Tip imobil: Bloc de apartamente
Număr Băi: 1
Posibilitate parcare: Da
Nr. locuri parcare: 1
Specificații
Numar Camere2
Suprafață utilă (m²)55
An constructie2024
EtajParter
CompartimentareDecomandat
Număr niveluri imobil3
Mobilat/Utilat3
ID: 16076248
Contactează vânzătorul
Companie
Adrian Corches
pe site din 9 Apractiv:
Nu există recenzii
Mai multe anunțuri ale utilizatorului
Sibiu, Sibiu
Despre companie
Loading ad...
Contactează vânzătorul
Companie
Adrian Corches
pe site din 9 Apractiv:
Nu există recenzii
Loading ad...
Vezi mai multe anunturi ale acestui vânzator
Toate anunturileAnunturi similare




































































































































































































































































































































































