George Cumpanasoiu
pe site din 6 Nov
activ: 10 Feb 2026 21:14









265.000 eur
Companie
Descriere anunt
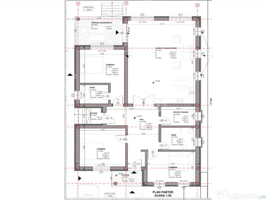
De vanzare in Sibiu casa individuala compusa din Parter Pod, cu o suprafata construita totala de 165 mp, amplasata pe un teren generos de 500 mp, situata in comuna Selimbar din Sibiu.
Casa dispune de o suprafata utila de 130 mp, repartizata pe un singur nivel.
Compartimentarea se face astfel: hol generos la intrare, 3 dormitoare matrimoniale dintre care unul are baie proprie, living open-space cu bucataria, baie, camera tehnica, terasa.
Detalii constructive:
Imobilul este construit din zidarie portanta cu caramida Porotherm Wienerberger, cu grosime de 30 cm la exterior si 25 cm la interior. Izolatia termica si fonica este asigurata printr-un strat exterior de 10 cm, finisat cu tencuiala decorativa.
Tamplaria este din PVC cu 7 camere, cu trei foi de sticla tratate pentru protectie solara. Usa de acces este din PVC, marca Drupanel, cu izolatie termica si fonica.
Acoperisul este de tip sarpanta, realizat cu tigla de beton marca Bramac si include sistem complet de hidroizolatie, jgheaburi, burlane si parazapezi.
Casa se vinde la stadiu de rosu in interior si fatada la gata; utilitati la poarta. Termen de livrare septembrie 2026.
Valoarea de achizitie este de 265.000 euro negociabil. Se poate achizitiona si prin credit bancar. ID intern: 3334.
Număr Băi: 2
Curent
Apă
Canalizare
Gaz
Specificații
ID: 16762430
Contactează vânzătorul
Companie
George Cumpanasoiu
pe site din 6 Novactiv:
Nu există recenzii
Mai multe anunțuri ale utilizatorului
Selimbar, Sibiu
Despre companie
Loading ad...
Contactează vânzătorul
Companie
George Cumpanasoiu
pe site din 6 Novactiv:
Nu există recenzii
Loading ad...
Vezi mai multe anunturi ale acestui vânzator
Toate anunturileAnunturi similare






































































































































































































































































































































































































