Marian Floricu
pe site din 24 Sep
activ: 10 Feb 2026 21:14








395.000 eur
Companie
Descriere anunt
Va propunem spre vanzare o proprietate rara, amplasata intr-una dintre cele mai bune si cautate zone din Selimbar, pe strada Octavian Goga, in imediata apropiere a cartierului Vasile Aaron si la doar 500 metri distanta de Shopping City Sibiu.
Aceasta nu este o casa construita la norma. Este un camin proiectat si executat cu atentie la detalii, cu accent pe confort, siguranta si durabilitate, asa cum ai face-o pentru tine, daca ai avea timp si resursele necesare.
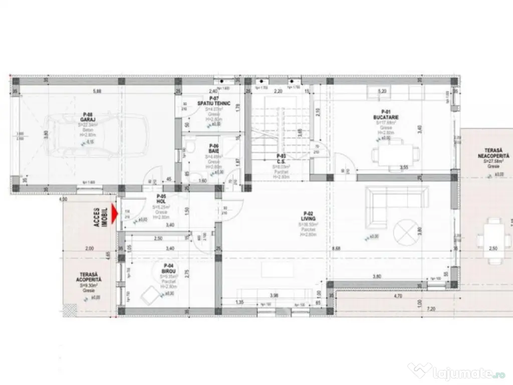
Constructia este complet noua si va fi predata in luna Iunie 2026 la stadiul de alb, cu posibilitatea de predare la cheie in functie de preferintele viitorului proprietar. Casa are regim de inaltime parter, etaj si pod si o suprafata utila de 172 mp. La acestea se adauga un garaj de 22 mp si o terasa exterioara neacoperita de 27 mp, cu acces direct din living si bucatarie. Parterul este compus dintr-un living generos de 36,5 mp, o bucatarie de 17,68 mp care poate fi open space sau separata, un birou perfect pentru lucru de acasa in suprafata de 9 mp, o baie, o camera tehnica si un hol de acces generos cu loc pentru pantofar si cuier.
Etajul este zona de odihna si este compus din trei dormitoare, dintre care unul dispune de baie proprie, o a doua baie care deserveste celelalte doua camere, un dressing spatios de 13 mp care poate fi transformat in al patrulea dormitor si un spatiu de depozitare de 3,7 mp.
Curtea este bine proportionata, cu o suprafata totala a terenului de 343 mp, o amprenta la sol de 127 mp si o curte libera de 216 mp, suficienta pentru amenajarea unei zone de relaxare, loc de joaca sau gradina.
Casa este construita din caramida Porotherm Robust, cu ziduri exterioare de 30 cm si interioare de 25 cm, izolatie exterioara din polistiren EPS 200 de 10 cm, decorativa marca STO si caramida decorativa de exterior Klinker. Acoperisul este realizat cu tigla Bramac Reviva si folie anticondens, iar lemnaria din pod este supradimensionata si ignifugata si sistem pluvial marca Bramac racordat la sistemul pluvial stradal . Placa peste parter supradimensionata pentru izolatie fonica, iar placarile tavanului de la etaj sunt cu rigips ignifug, izolat cu vata bazaltica si folie aluminizata lipita perimetral cu banda de etansare, usa de acces pod este termoizolanta cu vata si folie eluminitata.Tamplaria este de aluminiu cu bariera termica, realizata la comanda in doua culori, cu trei foi de sticla si baghete albe, importate din Ungaria. Garajul este pavat cu gresie speciala pentru trafic auto, usa actionata electric marca Hormann, priza pentru incarcare masina electrica si curent trifazic. Centrala termica este Vailant, cu boiler inclus, iar incalzirea in pardoseala este distribuita separat pe fiecare nivel, cu termostate individuale pentru fiecare incapere. Casa dispune de instalatie pentru aer conditionat, sistem audio 4.1 pregatit in living, tablouri electrice separate pentru parter si etaj cu sigurante pentru consumatorii de putere, prize si intrerupatoare montate.
Aleea auto si cea pietonala au sistem de degivrare electric si amenajate cu pavaj antichizat, curtea este dotata cu gazon la rola rezistent la seceta, racord de apa exterior, poarta auto si poarta pietonala cu actionare electrica si videointerfon. Imprejmuirea este realizata cu gard de beton si inchideri din lemn tratat pentru exterior, completate cu gard viu din ulm.
Valoarea casei este de 395.000 euro cu tva de 21% inclus, se poate achizitiona si prin intermediul unui credit ipotecar. ID intern: 3081.
Număr Băi: 3
Posibilitate parcare: Da
Nr. locuri parcare: 2
Curent
Apă
Canalizare
Gaz
Specificații
ID: 16815267
Contactează vânzătorul
Companie
Marian Floricu
pe site din 24 Sepactiv:
Nu există recenzii
Mai multe anunțuri ale utilizatorului
Sibiu, Sibiu
Despre companie
Loading ad...
Contactează vânzătorul
Companie
Marian Floricu
pe site din 24 Sepactiv:
Nu există recenzii
Loading ad...
Vezi mai multe anunturi ale acestui vânzator
Toate anunturileAnunturi similare



































































































































































































































































































































































































