BLITZ Romania
pe site din 4 Sep
activ: 10 Feb 2026 21:14


















375.000 eur
Companie
Descriere anunt
Blitz vă prezintă spre vânzare un ansamblu rezidențial modern, format din locuințe individuale cu arhitectură contemporană, finisaje de calitate și poziționare excelentă, ce oferă intimitate, confort și siguranță.
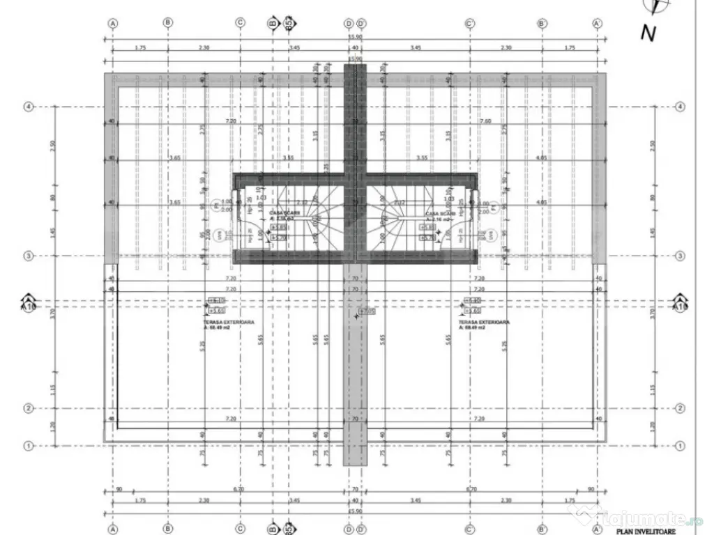
Fiecare unitate dispune de o suprafață generoasă de 190 mp utili, o terasă panoramică și un teren de 500 mp, fiind ideală pentru familii care își doresc spațiu, lumină naturală și o priveliște spectaculoasă.
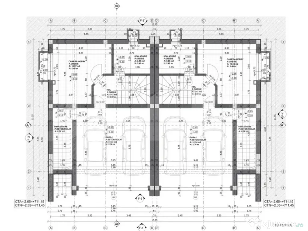
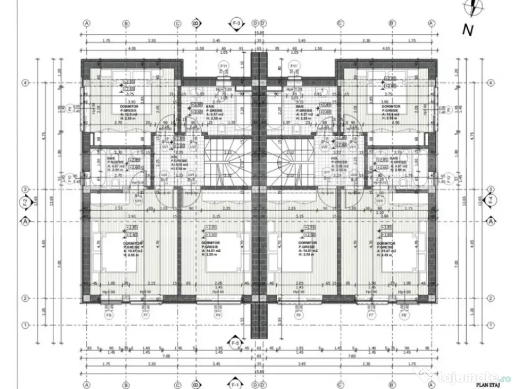
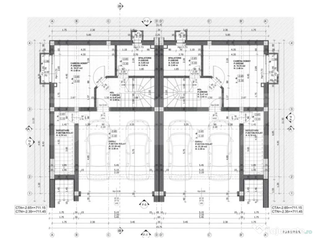
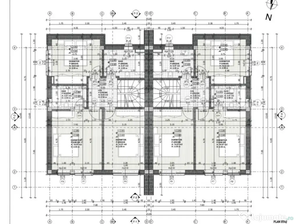
Compartimentare:
• Subsol: garaj pentru 2 mașini, spațiu de depozitare, spălătorie, sală hobby, scară interioară
• Parter: living spațios cu acces pe terasă, bucătărie și baie
• Etaj: 3 dormitoare, 2 băi, hol
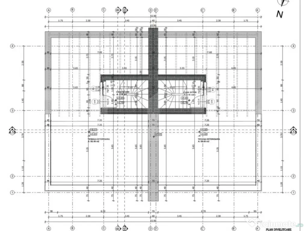
• Terasă panoramică: 70 mp – ideală pentru relaxare, zonă lounge sau jacuzzi
Detalii tehnice și dotări:
-Construcție solidă din cărămidă Porotherm de 30 cm, pentru izolație fonică și termică superioară
-Ferestre VEKA, 7 camere, 3 foi de sticlă cu baghetă caldă (element care reduce pierderile de căldură la marginea geamului și previne condensul)
-Încălzire în pardoseală în toată casa
-Centrală termică Viessmann, eficientă și fiabilă
-Termosistem de 15 cm grosime
-Garaj cu ușă automată și infrastructură pregătită pentru stație de încărcare electrică
Predare:
Casele se livrează la stadiul de semifinisat în interior și complet finisat la exterior, cu gazon, pavaj, garduri și porți de acces montate.
Această proprietate îmbină perfect calitatea construcției, designul modern și confortul zilnic, oferind viitorilor proprietari un loc deosebit pentru a numi „acasă”.
Cod ofertă / ID BLITZ: P157448
Id intern: P157448
Număr niveluri imobil: 1
Număr Băi: 3
Curent
Apă
Canalizare
Gaz
Specificații
Numar Camere5
Suprafață utilă (m²)190
An constructie2025
Suprafata construita (m²)500
Mobilat/Utilat3
Număr niveluri imobil1
ID: 16669046
Contactează vânzătorul
Companie
BLITZ Romania
pe site din 4 Sepactiv:
Nu există recenzii
Mai multe anunțuri ale utilizatorului
Feleacu, Cluj
Despre companie
Loading ad...
Contactează vânzătorul
Companie
BLITZ Romania
pe site din 4 Sepactiv:
Nu există recenzii
Loading ad...
Vezi mai multe anunturi ale acestui vânzator
Toate anunturileAnunturi similare
















































































































































































































































































































































































































