BLITZ Romania
pe site din 4 Sep
activ: 10 Feb 2026 21:14







240.000 eur
Companie
Descriere anunt
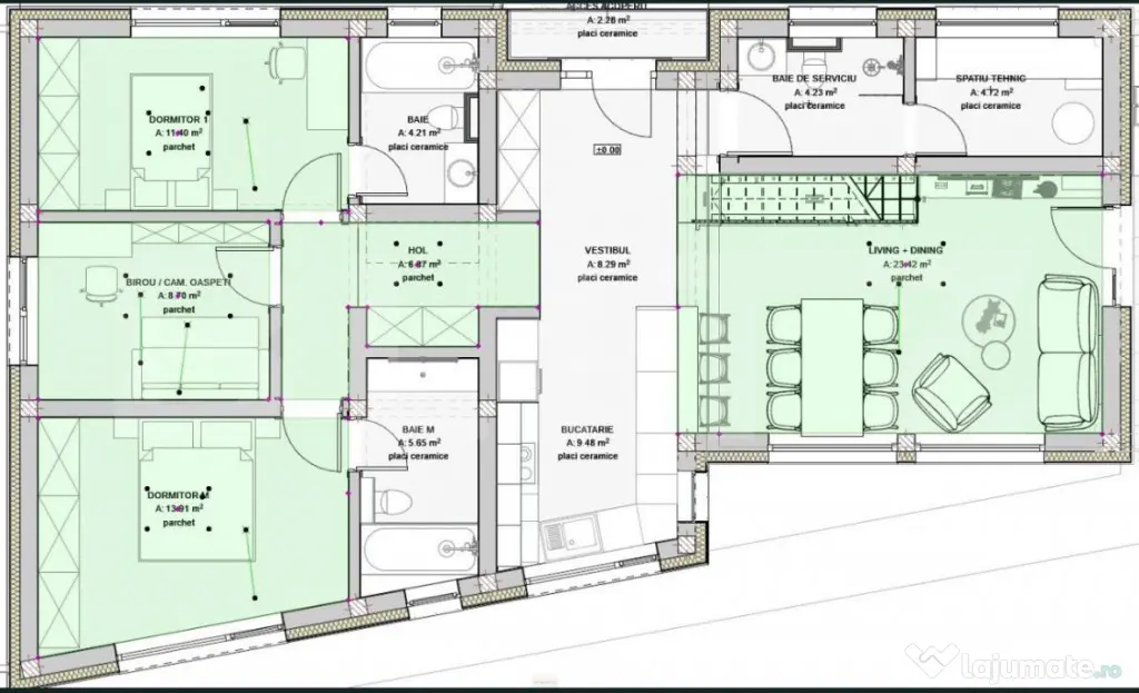
Blitz ofera spre vânzare casă individuală situată într-o zonă liniștită din Gilău, ideală pentru locuit, cu acces facil și un cadru natural plăcut. Proprietatea a fost construită în anul 2024, are o suprafață utilă de aproximativ 127 mp și este amplasată pe un teren generos de 830 mp.
Casa este dispusă pe parter și mansardă și beneficiază de o compartimentare practică, incluzând living spațios, bucătărie , două dormitoare, fiecare cu baie proprie, inca un dormitor, trei băi, spațiu tehnic și zone bine gândite pentru confortul zilnic.
Construcția este realizată din cărămidă, cu izolație interioară și exterioară de 15 cm, acoperiș din țiglă și ferestre termopan. Proprietatea este dotată cu încălzire în pardoseală, pompă de căldură, panouri fotovoltaice de 11 kW, sistem de ventilație, mașină de spălat vase și finisaje moderne, fiind vândută complet mobilată și utilată.
O alegere excelentă pentru cei care caută o locuință nouă, eficientă energetic și pregătită pentru mutare imediată.
Cod ofertă / ID BLITZ: P162421
Id intern: P162421
Număr niveluri imobil: 1
Număr Băi: 3
Specificații
Numar Camere4
Suprafață utilă (m²)121
An constructie2024
Suprafata construita (m²)830
Număr niveluri imobil1
ID: 16729809
Contactează vânzătorul
Companie
BLITZ Romania
pe site din 4 Sepactiv:
Nu există recenzii
Mai multe anunțuri ale utilizatorului
Gilau, Cluj
Despre companie
Loading ad...
Contactează vânzătorul
Companie
BLITZ Romania
pe site din 4 Sepactiv:
Nu există recenzii
Loading ad...
Vezi mai multe anunturi ale acestui vânzator
Toate anunturileAnunturi similare













































































































































































































































































































































































