BLITZ Romania
,
pe site din 4 Sep
activ: 10 Feb 2026 21:14








Casa moderna, materiale premium, 150 mp construiti, zona rez
135.000 eur
Companie
Suceava, SV
15.02.2026
Număr de telefon validat
Descriere anunt
Blitz va prezinta o casă individuală premium, situată într-o zonă rezidențială liniștită din Scheia, ideală pentru cei care își doresc confort, calitate și un stil de viață modern.
Proprietatea are o suprafață construită de 150 mp și este amplasată pe un teren de 320 mp, beneficiind de acces facil pe drum lat de 7 m. Casa este structurată pe parter, etaj și pod utilizabil, completată de terasă și balcon, cu posibilitate de carport și garaj, precum și 2 locuri de parcare.
Construcție și finisaje
Imobilul este realizat pe structură solidă din beton armat pe cadre, cu zidărie din cărămidă de 25 cm și armături din fier Ø16 / 14 / 12 / 10, asigurând durabilitate și siguranță pe termen lung.
Plafoanele înalte (2,80 – 2,90 m) oferă un plus de lumină naturală și senzația de spațiu aerisit.
Casa beneficiază de:
Tâmplărie PVC cu geam tripan (3 sticle), baghetă anticondens și sticlă 4 anotimpuri
Izolație exterioară EPS 100
Izolație suplimentară de 5 cm sub pardoseală
Încălzire în pardoseală, pentru confort termic optim
Terasă și balcon complet izolate și hidroizolate
Utilități
Proprietatea este racordată la toate utilitățile:
gaz, curent electric, apă, canalizare, internet.
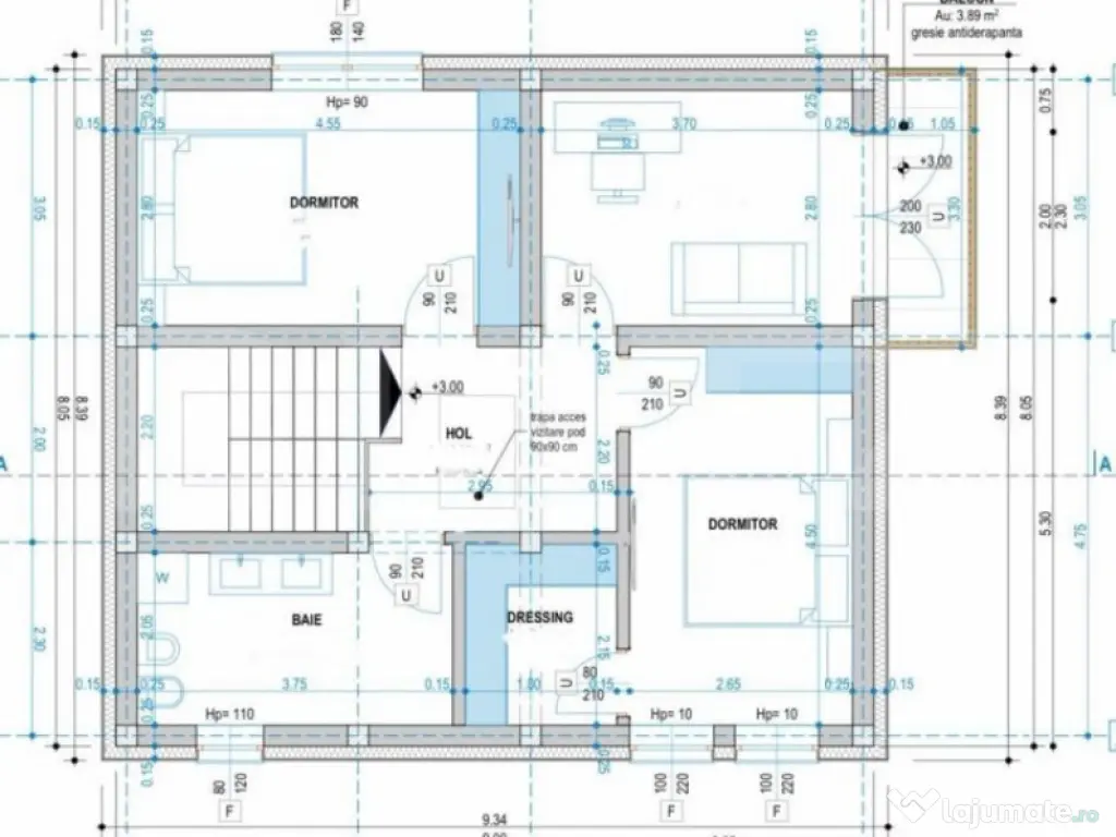
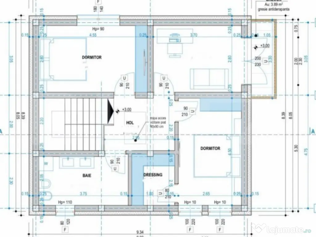
Compartimentare
Parter:
Hol de acces
Living spațios
Bucătărie
Baie
Zonă scară cu spațiu pentru mașină de spălat, pantofar și cuier
Etaj:
Hol
Baie mare
Dormitor 1
Dormitor 2 cu balcon
Dormitor 3 cu dressing
Pod:
Pod utilizabil, cu placă de beton și iluminat, ideal pentru depozitare sau spațiu multifuncțional
Va asteptam la vizionare !
Cod ofertă / ID BLITZ: P161721
Id intern: P161721
Număr niveluri imobil: 1
Număr Băi: 2
Nr. locuri parcare: 2
Curent
Apă
Canalizare
Gaz
Specificații
Numar Camere4
Suprafață utilă (m²)118
An constructie2025
Suprafata construita (m²)320
Mobilat/Utilat3
Număr niveluri imobil1
ID: 16720779
Contactează vânzătorul
Companie
BLITZ Romania
pe site din 4 Sepactiv:
Nu există recenzii
Mai multe anunțuri ale utilizatorului
Suceava, Suceava
Despre companie
Loading ad...
Contactează vânzătorul
Companie
BLITZ Romania
pe site din 4 Sepactiv:
Nu există recenzii
Loading ad...
Vezi mai multe anunturi ale acestui vânzator
Toate anunturileAnunturi similare
















































































































































































































































































































































































































































































