BLITZ Romania
pe site din 4 Sep
activ: 10 Feb 2026 21:14



185.000 eur
Companie
Descriere anunt
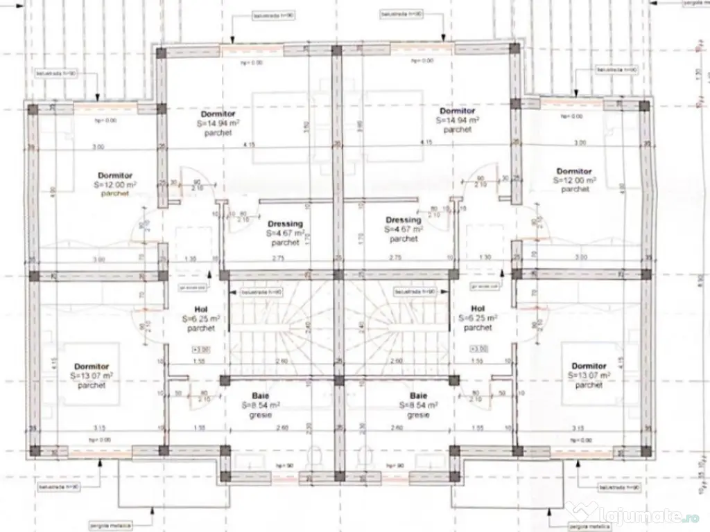
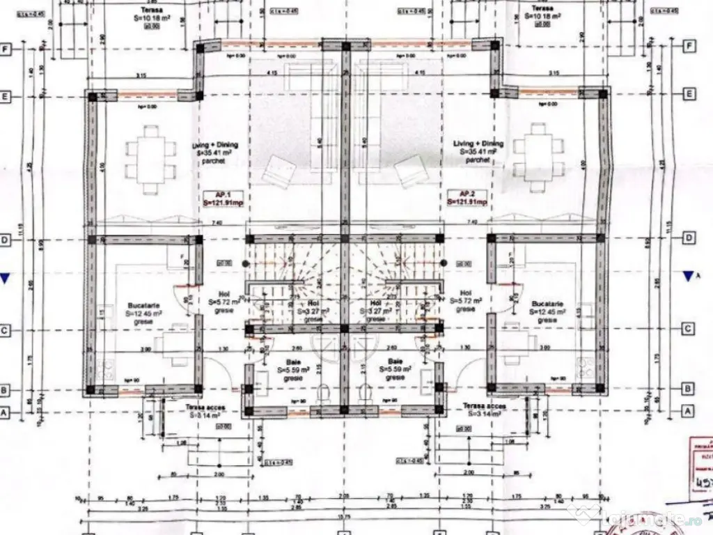
Blitz are placerea sa va prezinte spre vanzare un duplex superb situat in Giroc. Acesta are suprafata utila de 120 mp, iar suprafata terenului de 200 mp. Regimul de inaltime al acestuia este de P plus 1 etaj. Compartimentarea este gandita astfel, 3 dormitoare, 2 bai, o bucatarie separata, un living plus zona de dinning, un dresing, o terasa. Acesta dispune de 2 locuri de parcare. Constructia acestuia este premium si se va preda la cheie, cu finisaje de inalta calitate, gresie, faianta, parchet, geamuri tripan Salamander, usi interioare Bertolotto, incalzire in pardoseala de la Purmo, centrala proprie pe gaz marca Ariston. Dispune de toate utilitatile. Va invitam cu drag la o vizionare.
Cod ofertă / ID BLITZ: P144916
Id intern: P144916
Număr niveluri imobil: 1
Număr Băi: 2
Nr. locuri parcare: 2
Curent
Apă
Canalizare
Gaz
Climă
Specificații
Numar Camere4
Suprafață utilă (m²)120
An constructie2025
Suprafata construita (m²)400
Mobilat/Utilat3
Număr niveluri imobil1
ID: 16428532
Contactează vânzătorul
Companie
BLITZ Romania
pe site din 4 Sepactiv:
Nu există recenzii
Mai multe anunțuri ale utilizatorului
Giroc, Timis
Despre companie
Loading ad...
Contactează vânzătorul
Companie
BLITZ Romania
pe site din 4 Sepactiv:
Nu există recenzii
Loading ad...
Vezi mai multe anunturi ale acestui vânzator
Toate anunturileAnunturi similare
















































































































































































































































































































































































































