BLITZ Romania
pe site din 4 Sep
activ: 10 Feb 2026 21:14










143.000 eur
Companie
Descriere anunt
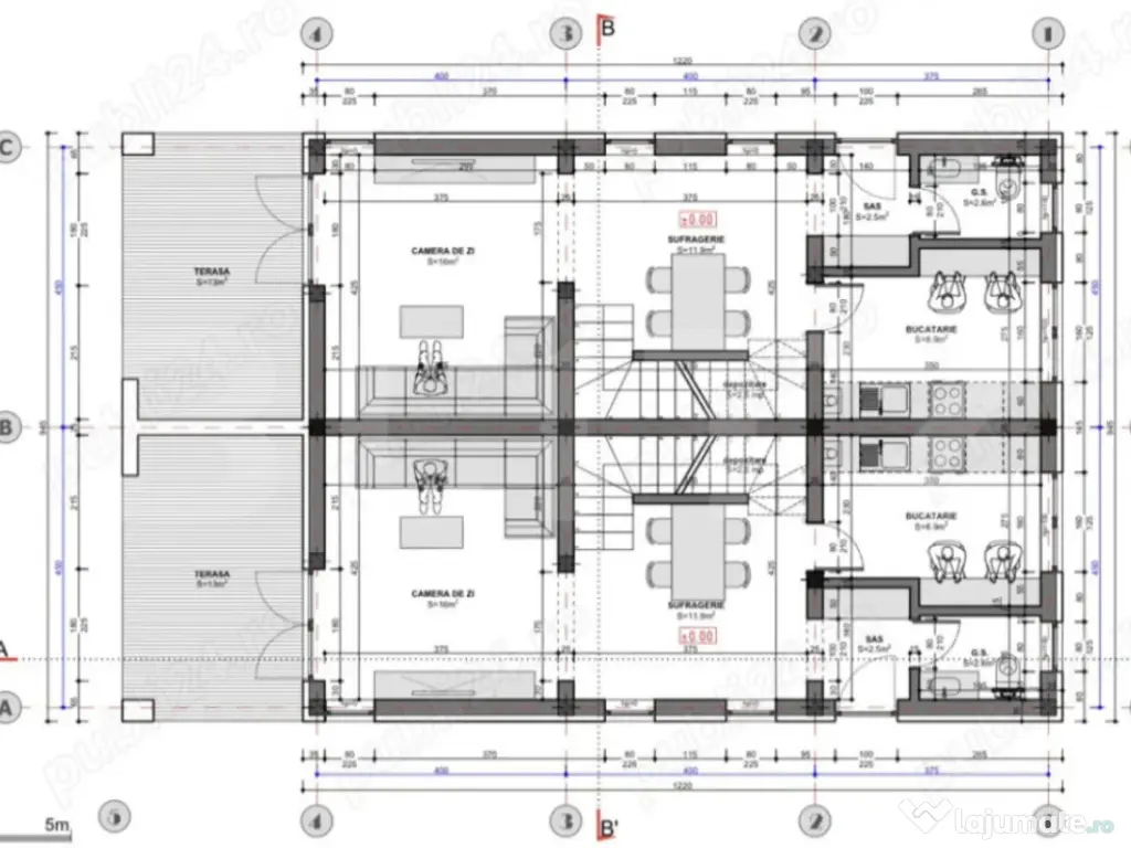
BLITZ va propune spre vanzare un duplex P+1E, ideal pentru cei care își doresc confort, intimitate și acces rapid către oraș, într-o zonă liniștită, aproape de asfalt, magazine si cu acces rapid catre centura.
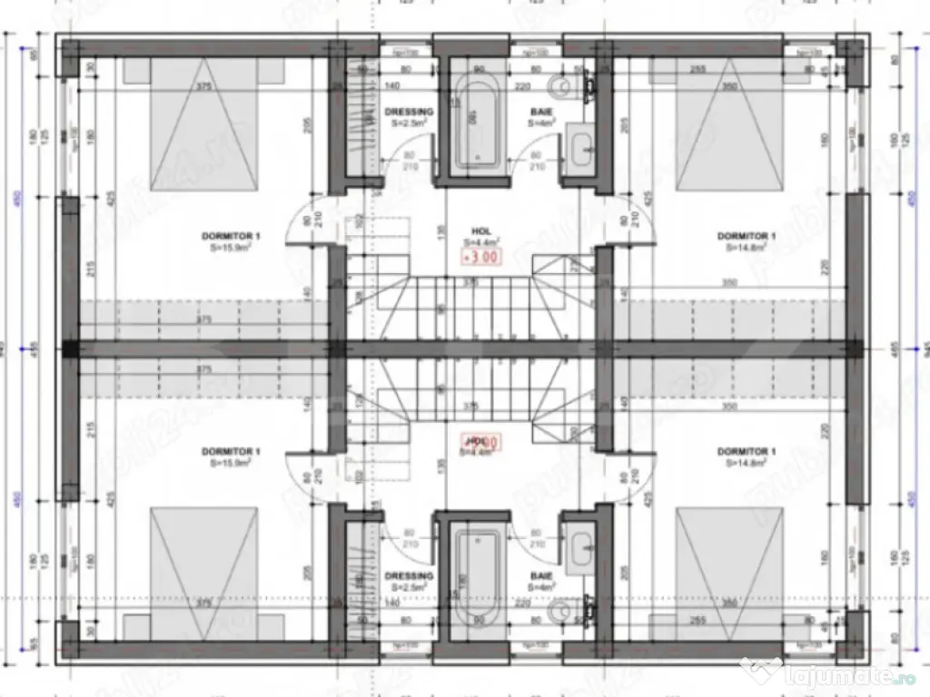
Locuința dispune de 86 mp utili și o terasă acoperită de 13 mp, amplasată pe un teren de 250 mp. Compartimentarea este gândită echilibrat: la parter regăsim bucătăria (cu posibilitate de închidere), un living spațios cu ieșire directă pe terasă și o baie cu duș, iar la etaj două dormitoare luminoase, dressing și o baie cu cadă.
Construcția beneficiază de geamuri tripan mari, încălzire în pardoseală, acoperiș în două ape, pavaj și toate utilitățile necesare – apă de la rețea, gaz, curent, canalizare, iluminat stradal funcțional și asfalt frezat. Toate acestea contribuie la un plus de eficiență, confort termic și costuri optimizate pe termen lung.
Termenul de predare este mai 2026.
Prețul este de 145.00 EUR la cheie sau 135.000 EUR la alb la interior.
O alegere potrivită pentru un cămin modern, luminos, bine compartimentat și pregătit să devină „acasă”.
Cod ofertă / ID BLITZ: P164516
Id intern: P164516
Număr niveluri imobil: 1
Număr Băi: 2
Curent
Apă
Canalizare
Gaz
Specificații
Suprafață utilă (m²)86
An constructie2025
Numar Camere3Mobilat/Utilat3
Suprafata construita (m²)250
Număr niveluri imobil1
ID: 16752030
Contactează vânzătorul
Companie
BLITZ Romania
pe site din 4 Sepactiv:
Nu există recenzii
Mai multe anunțuri ale utilizatorului
Mosnita Veche, Timis
Despre companie
Loading ad...
Contactează vânzătorul
Companie
BLITZ Romania
pe site din 4 Sepactiv:
Nu există recenzii
Loading ad...
Vezi mai multe anunturi ale acestui vânzator
Toate anunturileAnunturi similare























































































































































































































































































































































































































