

















2.000 eur
Persoana juridica
Bistrita, BN
24.02.2026
Număr de telefon validat
Descriere anunt
AFACERE LA CHEIE-OPORTUNITATE BUSINESS!!!
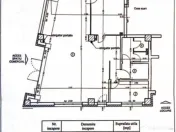
Gft Delta Office are placerea de a va prezenta in exclusivitate o oportunitate unica de business-complex industrial de vanzare/inchiriere situat in orasul Bistrita, jud. BN
Acest complex este format din 4 corpuri cu o suprafață totala desfasurata de 1708 mp, amplasate pe un teren intravilan cu o suprafața de 2800 de mp.
Imobilul se vinde impreuna cu o linie completa de productie mobilier lemn masiv.
Toate utilitatile!
Acest complex industrial se poate achizitiona la pretul de 1.150.000€ sau se pot inchiria 2 corpuri ( hale) cu o suprafata desfasurata de 1290 mp cu sau fara utilaje.
Pret inchiriere fara utilaje: 2000€/luna, cu utilaje: 3900€/luna.
Pentru mai multe informatii sau pentru a aranja o vizionare nu ratati ocazia sa ne contactati telefonic la:
0749839689 sau 0746918422
Va multumim!
Suprafaţă totală: 1708 m²
An finalizare construcție: 2000
Stadiu construcţie: Finalizat
Posibilitate parcare: Nu
Tip imobil: Alte tipuri
ID: 16755018
Contactează vânzătorul
Persoana juridica
Gaurean Florin
pe site din 8 Junactiv:
Nu există recenzii
Mai multe anunțuri ale utilizatorului
Bistrita, Bistrita-Nasaud
Drepturile consumatorilor
Acest anunț a fost publicat de către un vânzător privat.
Ca urmare, legile privind drepturile consumatorilor nu se aplică în cazul achizițiilor pe care le faci de la acest vânzător. Este deosebit de important să respecți sfaturile noastre cu privire la siguranță în interacțiunile cu vânzători privați.
Loading ad...
Contactează vânzătorul
Persoana juridica
Gaurean Florin
pe site din 8 Junactiv:
Nu există recenzii
Loading ad...
Vezi mai multe anunturi ale acestui vânzator
Toate anunturileAnunturi similare








































































































































































































































































































