Cristian Angheloiu
pe site din 11 Sep
activ: 10 Feb 2026 21:14












12.000 eur
Companie
Descriere anunt
Cladire de Birouri de Inchiriat | Metrou Grivita
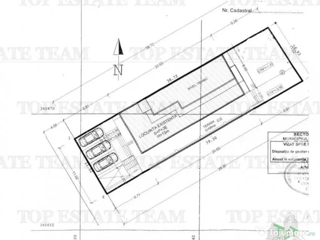
Cladire de birouri amplasata intr-o zona cu acces rapid catre Piata Victoriei, Gara de Nord si principalele artere centrale ale Bucurestiului.
Imobilul este structurat pe Subsol Parter 4 Etaje si beneficiaza de compartimentare functionala, adaptata activitatilor office, sediu companie sau investitie cu potential de inchiriere multi-tenant.
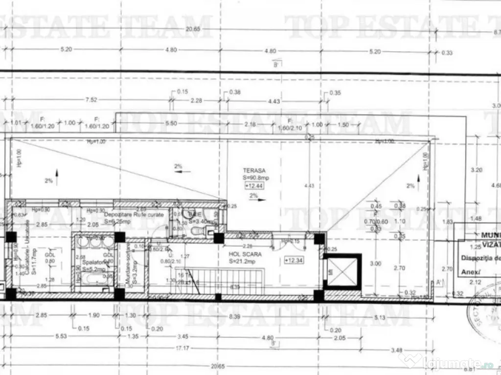
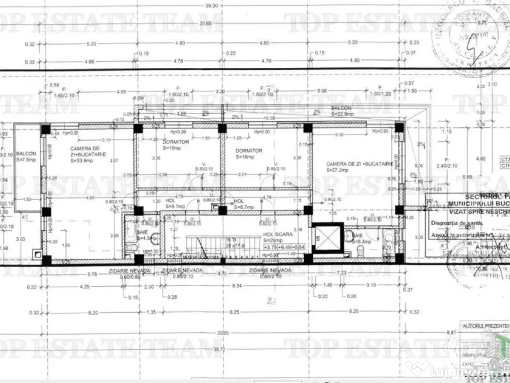
SUPRAFETE APROXIMATIVE:
Subsol ndash; 178.8 mp
Parter ndash; 200.4 mp
Etaj 1 ndash; 157.3 mp
Etaj 2 ndash; 157.5 mp
Etaj 3 ndash; 157.1 mp
Etaj 4 ndash; 138.8 mp
COMPARTIMENTARE:
SUBSOL: bucatarie, spatii depozitare, 3 grupuri sanitare, birouri, hol
PARTER: 2 sali conferinta, receptive, grupuri sanitare, camera tehnica, terasa acoperita 73 mp
ETAJ 1: birouri, 2 grupuri sanitare, 2 balcoane, hol
ETAJ 2: birouri, grup sanitar, 2 balcoane, hol
ETAJ 3: birouri, 2 grupuri sanitare, 2 balcoane, hol
ETAJ 4: 1 incapere open space, birouri, 2 grupuri sanitare, 1 balcon 1 terasa
DOTARI SI AVANTAJE:
lift interior
compartimentare flexibila
lumina naturala buna
configuratie single tenant sau multi-tenant
acces facil transport public
zona business in dezvoltare
Cladirea este potrivita pentru sediu corporate, IT amp; outsourcing, clinica, institutii educationale sau investitie generatoare de venit.
Pentru detalii suplimentare si programarea unei vizionari va stam la dispozitie.
Suprafaţă totală: 1000 m²
An finalizare construcție: 2020
Stadiu construcţie: Finalizat
Înălţime spaţiu: 3 m
Număr încăperi: 18
Tip imobil: Bloc de apartamente
Specificații
Suprafață utilă (m²)1000
ID: 16756417
Contactează vânzătorul
Companie
Cristian Angheloiu
pe site din 11 Sepactiv:
Nu există recenzii
Mai multe anunțuri ale utilizatorului
Bucuresti, Bucuresti-Ilfov
Despre companie
Loading ad...
Contactează vânzătorul
Companie
Cristian Angheloiu
pe site din 11 Sepactiv:
Nu există recenzii
Loading ad...
Vezi mai multe anunturi ale acestui vânzator
Toate anunturileAnunturi similare





































































































































































































































































































































































































