Elena Zaharia
pe site din 5 Mai
activ: 10 Feb 2026 21:14












115.000 eur
Companie
Descriere anunt
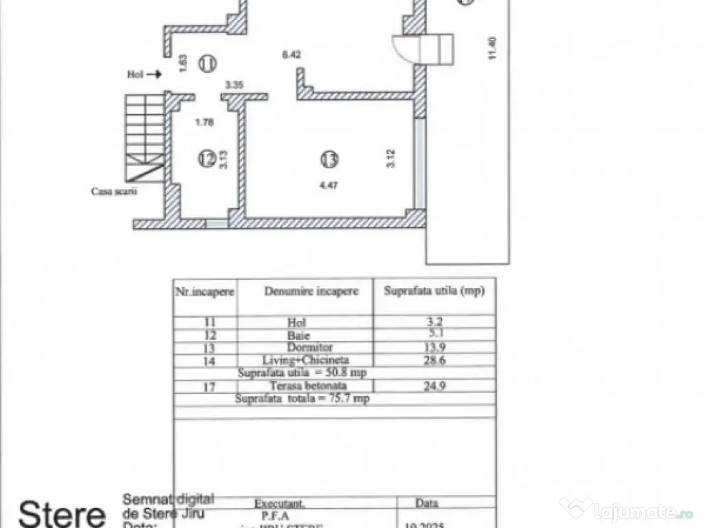
În inima Mamaia Nord, într-un bloc nou, pe stradă betonată, te așteaptă un apartament care inspiră liniște și confort încă de la prima vedere.
Situat la parter din 4, cu 51 mp utili și o terasă generoasă de 25 mp, acest spațiu este gândit pentru cei care își doresc mai mult decât o locuință: un stil de viață.
Recent mobilat și utilat, dotat cu centrală pe gaz și aer condiționat, apartamentul este gata de mutare.
Pentru mai multe detalii, nu ezitati sa ne contactati!
Id intern: P241560
Confort: 1
Tip imobil: Bloc de apartamente
Număr Băi: 1
Comision cumpărător: 2%
Nr. locuri parcare: 1
Specificații
Suprafață utilă (m²)50
An constructie2025
Numar Camere2CompartimentareSemidecomandat
EtajParter
Mobilat/Utilat1
Număr niveluri imobil4
ID: 16753082
Contactează vânzătorul
Companie
Elena Zaharia
pe site din 5 Mayactiv:
Nu există recenzii
Mai multe anunțuri ale utilizatorului
Mamaia Sat, Constanta
Despre companie
Loading ad...
Contactează vânzătorul
Companie
Elena Zaharia
pe site din 5 Mayactiv:
Nu există recenzii
Loading ad...
Vezi mai multe anunturi ale acestui vânzator
Toate anunturileAnunturi similare








































































































































































































































































































































































































































































