BLITZ Romania
pe site din 4 Sep
activ: 10 Feb 2026 21:14







98.000 eur
Companie
Descriere anunt
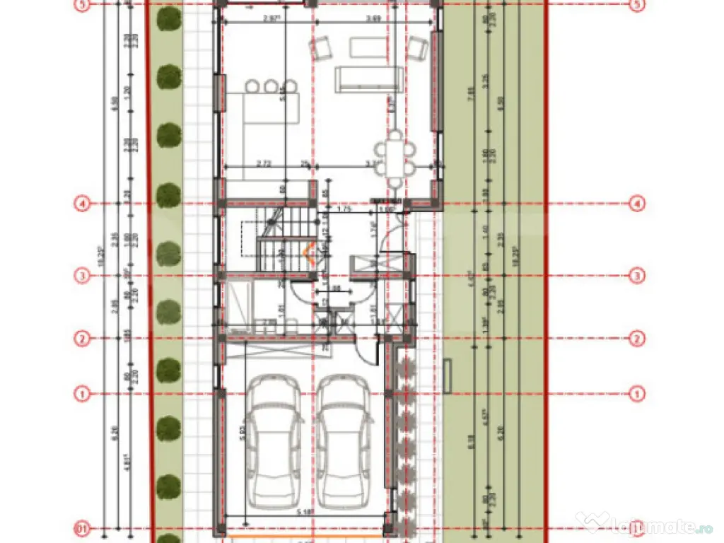
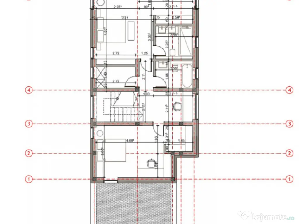
Blitz oferă spre vânzare o parcela de teren intravilan situata in Salicea, având suprafață de 1000 mp si front 12 m.Parcela este situata in zona de case, urbanizata partial ,cu acces facil de pe drum comunal, având utilități (apa, curent) in apropierea proprietății. Parcela este in autorizare pentru construcția unei case individuale P+M, in suprafață utila de 120 mp ! Pentru continuarea proiectului se asigura suportul arhitectului pentru finalizarea proiectului, planșe de arhitectura, documentațiile tehnice, avizările aferente ! Pentru mai multe detalii va stam la dispoziție, va așteptăm cu drag la vizionare !
Cod ofertă / ID BLITZ: P156947
Id intern: P156947
Specificații
Extravilan / IntravilanIntravilan
Front stradal (metri)12
UtilitățiDa
ID: 16664224
Contactează vânzătorul
Companie
BLITZ Romania
pe site din 4 Sepactiv:
Nu există recenzii
Mai multe anunțuri ale utilizatorului
Salicea, Cluj
Despre companie
Loading ad...
Contactează vânzătorul
Companie
BLITZ Romania
pe site din 4 Sepactiv:
Nu există recenzii
Loading ad...
Vezi mai multe anunturi ale acestui vânzator
Toate anunturileAnunturi similare







































































































































































































