Silvana Borza
pe site din 22 Iul
activ: 10 Feb 2026 21:14










590.000 eur
Companie
Descriere anunt
Vă propun spre vânzare pensiunea turistică, clasificată la 4 margarete, situată în zona Salinei Slănic – Prahova, cea mai mare salină din Europa. Pensiunea este amplasată într-un cadru natural deosebit, oferind o panoramă spectaculoasă asupra dealurilor și munților din împrejurimi.
La o distanță de doar 90–100 km de București (aproximativ 1 oră și 20 de minute de mers cu mașina), proprietatea beneficiază de o poziționare excelentă, cu acces facil și un flux constant de turiști români și străini.
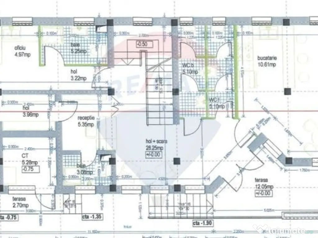
Deschisă circuitului turistic în august 2014 și extinsă în 2018, pensiunea se întinde pe un teren de 6.000 mp și are o suprafață utilă totală de aproximativ 1.000 mp. Proprietatea este alcătuită din două corpuri de clădire. Cele 15 camere sunt spațioase, elegante și decorate cu atenție la detalii, fiecare cu design personalizat, mobilier din lemn masiv și grup sanitar propriu. Accesul se face cu cartelă magnetică, iar fiecare cameră este dotată cu economizor de energie. Complexul oferă două săli de restaurant interioare, o terasă exterioară generoasă și o bucătărie profesională complet echipată.
Pensiunea este dotată cu:
- piscină exterioară cu acoperiș rabatabil și zonă de plajă cu șezlonguri
- foișoare, pavilion de divertisment (masă de biliard, fotbal de masă etc.), teren de sport, loc de joacă pentru
copii, spații verzi, parcare privată
- panouri solare și fotovoltaice, generator electric de ultimă generație, camere video de supraveghere
- sistem informatizat și automatizat integral, inclusiv rezervări online și acces camere
Iluminatul exterior este alimentat cu energie solară, contribuind la un consum redus de utilități și o eficiență energetică ridicată.
Pensiunea are o caracteristică rară – datorită amplasării în vecinătatea unui deal sub care se află una dintre galeriile salinei, aerul din zonă este puternic ionizat natural (până la 50% din gradul de ionizare din interiorul salinei). Fiecare cameră este dotată suplimentar cu lampadar din sare (80 kg), crescând gradul de ionizare la aproximativ 70% – un veritabil tratament respirator natural chiar în timpul somnului.
Pensiunea funcționează cu profit constant, are toate autorizațiile de funcționare și un portofoliu stabil de clienți.Este listată pe platforme internaționale și deține propriul site de rezervări automatizat, cu proces complet de booking și plată online.
Se vinde ca afacere la cheie, cu tot cu societatea comercială care o operează, oferind astfel posibilitatea unei preluări imediate și fără întrerupere a activității. Ideală pentru investitori care caută o proprietate turistică complet operațională, cu reputație solidă și potențial real de dezvoltare.
Pentru informatii suplimentare vă stau cu drag la dispoziție!
An finalizare construcție: 2014
Stadiu construcţie: Finalizat
Număr încăperi: 15
Posibilitate parcare: Nu
ID: 16672384
Contactează vânzătorul
Companie
Silvana Borza
pe site din 22 Julactiv:
Nu există recenzii
Mai multe anunțuri ale utilizatorului
Slanic, Prahova
Despre companie
Loading ad...
Contactează vânzătorul
Companie
Silvana Borza
pe site din 22 Julactiv:
Nu există recenzii
Loading ad...
Vezi mai multe anunturi ale acestui vânzator
Toate anunturileAnunturi similare































































































































































































































































































































































































































