Ureche Pavel
pe site din 8 Aug
activ: 10 Feb 2026 21:14









266.000 eur
Companie
Descriere anunt
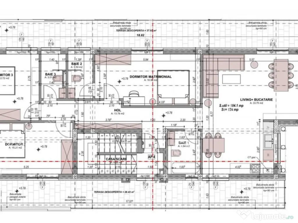
De vanzare penthouse complet finisat la cheie compus din 4 camere decomandate cu 3 bai si doua terase care insumeaza 66,36 mp, singur pe nivel, localizat in zona Arhitectilor.
Locuinta este pozitionata la etajul 2 al unui imobil constructie noua 2025 cu termen de predare nu mai tarziu de luna Decembrie 2026. Imobilul are regimul de inaltime Parter 2 Etaje si gazduieste doar 4 apartamente, un apartament la parter cu gradina, 2 apartamente la etajul 1 iar la Etajul 2 etajul retras penthouseul.
Din punct de vedere structural blocul este edificat pe structura din beton si caramida cu grosimea de 30 cm la exterior, izolat termic cu vata bazaltica de 10 cm grosime si acoperit cu tencuiala decorativa siliconata de exterior iar ca si elemente de design exterior imobilul dispune de benzi led si corpuri individuale perimetrale de exterior incastrate in structura blocului, riflaje si diverse placari exterioare.
Penthouseul are suprafata utila de 104,10 mp utili iar acesta este alcatuit dintr-ul hol spatios de 13,78 mp unde poate fi amenajata zona primire cu pantofar si cuier si un dressing spatios, camera de zi tip open space cu bucataria 33,75 mp care se pot delimita, cele 3 dormitoare dintre care dormitorul matrimonial are 16,96 mp si dispune de propria baie de 3,50 mp si dotata cu geam de aerisire, al doilea dormitor de 12,72 mp care are acces la propria baie de 3,51 mp dotata cu geam de aerisire iar al treilea dormitor are 15,26 mp si a treia baie de 4,64 mp dotata cu geam de aerisire.
Separat de suprafata utila locuinta dispune de 2 terase care insumeaza 66,36 mp, fiind placata cu gresie antiderapanta si inchisa cu balustrada din sticla securizata, accesul in cele doua terase se face din toate incaperile acestea fiind desfasura pe doua laturi ale locuintei.
Parcarea se realizeaza pe propriul loc de parcare amenajat in fata imobilului, delimitat si inscriptionat.
Apartamentul se preda complet finisat la cheie cu dotari si finisaje precum:
-Gresie si faianta in bucatarie, gresie si faianta in bai, obiecte sanitare ( cabina de dus/cada, lavoar, vas wc, baterii cada/lavoar ), parchet laminat, usi de interior, corpuri de iluminat, care pot fi alese chiar de dumenavoastra in limita unui buget.
-Scafe realizate pentru iluminat led modern;
- Usa de metal la intrarea in apartament placata cu panou MDF;
- Pereti tencuiti ( tencuieli pe baza de var-ciment), slefuiti si zugraviti in 3 maini de lavabila;
- Pardoseli amenajate cu sapa autonivelanta semiuscata elicopterizata pregatite pentru parchet-gresie;
- Tamplarie PVC marca Salamander cu 7 camere si 3 foi de sticla ( lowe-float-lowe solar ) si 3 garnituri, glafuri interior-exterior;
- Incalzire in pardoseala cu cablaj pentru termostatarea individuala a fiecarei incaperi, centrala termica proprie in condensatie marca Bosch si detector gaz;
- Sisteme elecrice din cupru trase prin copex cu tablou general si sigurante pentru consumatorii de putere marca Schneider;
- Instalatii pentru curentii slabi, Internet, Telefon, TV;
- Racorduri apa-canal in bucatarie si bai;
- Racord gaz metan in bucatarie;
- Rupere termica intre balcon si placa din profil de 10 cm montat la tamplarie si polistiren extrudat;
- Instalatii pentru gaz, curent electric si apa, contorizare individuala si contoare montate.
Apartamentul face parte dintr-un complex rezidential modern, intim, compus din 2 imobile cu regimuri de inaltime Parter Etaj Etaj retras, totalizand 8 apartamente in tot complexul, unde apartamentul de la Parter si cel de la Etajul Retras sunt singure pe nivel iar la etajul 1 sunt doar 2 apartamente. Complexul detine si locuri de parcare private atribuite locatarilor, zona verde generoasa care inconjoara imobilul.
Valoarea de achizitie este de 266.000 euro cu TVA de 21% inclus in pret, locuinta poate fi achizitionata si prin ac
Confort: 1 sporit
Tip imobil: Bloc de apartamente
Număr Băi: 3
Posibilitate parcare: Da
Nr. locuri parcare: 1
Specificații
Suprafață utilă (m²)104
An constructie2026
Numar Camere4CompartimentareDecomandat
Etaj2
Număr niveluri imobil2
ID: 16789128
Contactează vânzătorul
Companie
Ureche Pavel
pe site din 8 Augactiv:
Nu există recenzii
Mai multe anunțuri ale utilizatorului
Sibiu, Sibiu
Despre companie
Loading ad...
Contactează vânzătorul
Companie
Ureche Pavel
pe site din 8 Augactiv:
Nu există recenzii
Loading ad...
Vezi mai multe anunturi ale acestui vânzator
Toate anunturileAnunturi similare




















































































































































































































































































































































































