Mihai
Focsani, Vrancea
pe site din 10 Iun
activ: 1 Mai 2026 10:30














560.000 eur
Companie
Descriere anunt
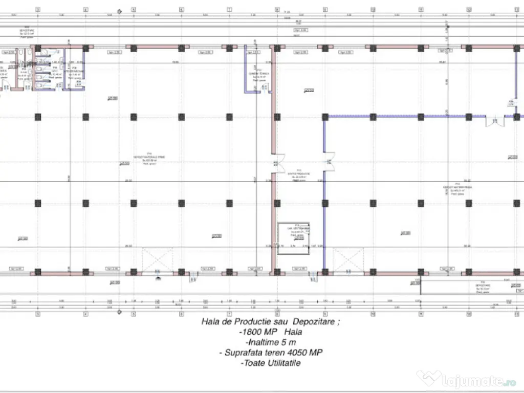
Vă prezentăm o proprietate industrială de top, complet funcțională și modernizată, situată strategic în Zona Industrială Focșani Vest, ideală atât pentru dezvoltarea propriei afaceri, cât și ca investiție cu randament sigur.
DATE TEHNICE ESENȚIALE
- Suprafață hală: 1.800 mp
- Suprafață teren: 4.000 mp
- Curte betonată + parcare: 2.200 mp
- Înălțime hală: 5 m
- Acces TIR + rampă încărcare descărcare
-Acces rapid autostrada A7
DOTĂRI ȘI UTILITĂȚI
- Curent trifazic 380 V 100 kW
- Sistem antiincendiu complet
- Uși rezistente la foc
- Încălzire cu centrale termice + 2 ventilo-convectoare pe gaz
- Ventilație profesională cu 2 chillere
- 6 grupuri sanitare
CONSTRUCȚIE SOLIDĂ
- Structură din beton armat, cu stâlpi de susținere
- Acoperiș pe grinzi și placă de beton, acoperit cu tablă
- Spații bine compartimentate:
- zone de producție
- birouri
- spații tehnice
STARE IMOBIL
- Renovare totală în anul 2013
- Stare excelentă gata pentru utilizare imediată
DESTINAȚIE & AVANTAJE
- Producție industrială
- Depozitare & logistică
- Sediu operațional
Investiție sigură pentru închiriere pe termen lung
O proprietate rară pe piață, într-o zonă industrială cu cerere ridicată, ce oferă infrastructură completă, acces excelent și flexibilitate maximă pentru diverse tipuri de activități.
Contact:
HOUSE AVANTAJ - Agenția ta imobiliară din Focșani
Oferim servicii complete: vânzări, închirieri, certificate energetice, evaluări imobiliare, consultanță credite, întocmire documente cadastrale și funciare, consultanta credite , etc.
Doriți să vizionați Proprietatea ? Programează o vizită chiar astăzi !
Suprafaţă totală: 4000 m²
An finalizare construcție: 1970
Stadiu construcţie: Finalizat
Înălţime spaţiu: 5 m
Număr Grupuri Sanitare: 6
Tip imobil: Centru comercial
Specificații
Suprafață utilă (m²)1800
ID: 16736560
Contactează vânzătorul
Companie
Mihai
pe site din 10 Junactiv:
Nu există recenzii
Mai multe anunțuri ale utilizatorului
Focsani, Vrancea
Despre companie
Loading ad...
Contactează vânzătorul
Companie
Mihai
pe site din 10 Junactiv:
Nu există recenzii
Loading ad...
Vezi mai multe anunturi ale acestui vânzator
Toate anunturileAnunturi similare



































































































































































































































































































































