BLITZ Romania
pe site din 4 Sep
activ: 10 Feb 2026 21:14











6.000 eur
Companie
Descriere anunt
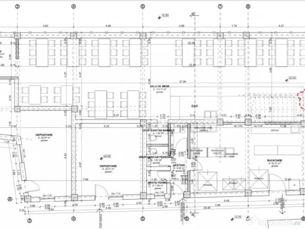
Blitz vă prezintă pentru închiriere un spațiu comercial generos, gândit și compartimentat pentru activități din domeniul HoReCa și evenimente de zi, cu funcționalitate clară și infrastructură completă.
Imobilul este dispus pe 3 nivele (Parter + Etaj + Pod Inalt), având o suprafață utilă totală de 674.81 mp, oferind o separare logică a fluxurilor pentru clienți și personal.
Parterul este amenajat cu:
-zonă de bucătărie
-zonă dedicată clienților
-zonă de bar
-grup sanitar pentru clienți
-2 grupuri sanitare pentru angajați
-zonă de vestiar
Etajul dispune de:
-zonă de bar
-zonă de clienți
-grup sanitar pentru clienți
Podul Inalt, cu o suprafata utila de 221.94mp, ofera spatiu suplimentar flexibil, ce poate fi adaptat
Spațiul beneficiază de acces separat pentru marfă în curte, facilitând aprovizionarea fără a interfera cu zona de clienți. Confortul și controlul utilităților sunt asigurate prin centrală termică proprie și panou electric separat pentru fiecare nivel, oferind flexibilitate și eficiență în exploatare.
În plus, imobilul este dotat cu: sistem de supraveghere video, autorizație ISU, un avantaj major pentru demararea rapidă a activității.
Destinația spațiului este pretabilă pentru Pub, Fast Food sau Evenimente de zi, fiind pregătit pentru funcționare cu investiții minime suplimentare.
Condiții de închiriere:
-Perioadă contractuală minimă: 5 ani
-Garanție: 18.000 euro, cu posibilitatea achitării în tranșe, de comun acord
Dacă dorești să-ți deschizi o afacere cu un minim de investiție, nu ezita să ne contactezi și să programăm o vizionare.
Cod ofertă / ID BLITZ: P163158
Id intern: P163158
Stadiu construcţie: Finalizat
Tip imobil: Casă/Vilă
Specificații
Suprafață utilă (m²)674
ID: 16736338
Contactează vânzătorul
Companie
BLITZ Romania
pe site din 4 Sepactiv:
Nu există recenzii
Mai multe anunțuri ale utilizatorului
Timisoara, Timis
Despre companie
Loading ad...
Contactează vânzătorul
Companie
BLITZ Romania
pe site din 4 Sepactiv:
Nu există recenzii
Loading ad...
Vezi mai multe anunturi ale acestui vânzator
Toate anunturileAnunturi similare





































































































































































































































































































